Prodej rodinného domu 222 m2, Dolní Bukovsko

7 100 000 Kč za nemovitost

D Méně nehospodárná

Dolní Bukovsko Klidná část obce

  | mapa

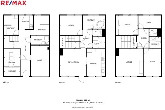
Nabízím ke koupi rodinný dům na adrese Ulice Na Chobotě Č. p. 308 v obci Dolní Bukovsko, okres České Budějovice. Tato nemovitost je ideální volbou pro rodiny s dětmi, které hledají bezpečné a příjemné prostředí pro svůj život. Dům o celkové užitné ploše 222 m² se nachází na pozemku o rozloze 208 m² + 89 m² nově přikupovaná zahrada nabízí dostatek prostoru pro vaše rodinné aktivity. Hlavním benefitem této nemovitosti je možnost rozdělení domu na dvě oddělené bytové jednotky (vše připraveno).

Jedná se o patrový dům se třemi podlažími, přičemž dvě patra domu jsou dřevostavba a suterén domu je zděný. Dům prošel celkovou zdařilou rekonstrukcí včetně zateplení domu. Dispozice je 6+1 přičemž jsou v domě rozsáhlé úložné prostory v suterénu domu (viz. náčrt dispozice v obrazové části inzerce). Interiér domu je prostorný a světlý, což poskytuje dostatek místa pro každého člena rodiny. Praktický suterén + garáž má plochu 74 m², který se skvěle hodí pro uskladnění různých potřeb a hraček.

Nově přikupovaná zahrada k domu má výměru 89 m² a poskytuje prostor pro venkovní aktivity, grilování a další zábavu. V domě se nacházejí dětské pokoje, které mohou být skvěle uzpůsobeny pro komfort a kreativitu vašich dětí. Kromě toho lze místnosti snadno přizpůsobit podle vaší představy o ideálním bydlení.

V okolí se nachází veškerá potřebná občanská vybavenost. Bezpečné prostředí je zajištěno klidnou lokalitou, která je ideální jak pro procházky, tak pro dovádění dětí na čerstvém vzduchu. Školy a školky jsou v těsné blízkosti, stejně jako parky a dětská hřiště, kde si vaše děti mohou hrát a navazovat přátelství s vrstevníky.

Pro komfort rodiny je k dispozici garáž a čtyři parkovací místa, což znamená, že vaše vozidlo bude vždy v bezpečí a na dosah. Vytápění domu zajišťuje úsporný kotel na pelety. Teplou vodu zde ohřívá elektrický bojler. Dům je napojen na vodovod, kanalizaci a elektřinu, což zajišťuje pohodlné a bezproblémové bydlení.

Pokud hledáte místo, které se stane domovem pro vaši rodinu, s dostatkem prostoru, komfortem a bezpečím, tento dům na Ulici Na Chobotě v Dolním Bukovsku je skvělou volbou. V případě zájmu o prohlídku mne neváhejte kontaktovat.

Kontaktujte makléře nemovitosti

Podobné nemovitosti

Prodej komerčního objektu 300 m2, Týn nad Vltavou

Prodej komerčního objektu 300 m2, Týn nad Vltavou

Exkluzivně nabízím ke koupi jedinečnou komerční nemovitost o celkové velikosti 703 m2 na velmi lukrativním místě v bezprostřední blízkosti obchodních řetězců Lidl, Penny atd. Součástí této nemovitosti je montovaná hala, která je d...

4 990 000 Kč za nemovitost

Prodej komerčního objektu 37 m2, Týn nad Vltavou

Prodej komerčního objektu 37 m2, Týn nad Vltavou

Exkluzivně nabízím ke koupi jedinečnou komerční nemovitost o celkové ploše 669 m2 na velmi lukrativním místě v bezprostřední blízkosti obchodních řetězců Lidl, Penny atd., jehož součástí je budova zkolaudovaná jako prodejna, která...

5 990 000 Kč za nemovitost

Hluboká nad Vltavou - Zámostí – prodej stavebního pozemku 1591 m²

Hluboká nad Vltavou - Zámostí – prodej stavebního pozemku 1591 m²

Nabízíme k prodeji exkluzivní pozemek ležící v klidné, rezidenční části obce Hluboká nad Vltavou, Zámostí, v ulici Nádražní. Mírně svažitý pozemek tvaru L, s celkovou výměrou 1591 m2 je dle územního plánu Hluboká nad Vltavou určen...

7 500 000 Kč za nemovitost

Prodej obchodního prostoru 225 m2, Hluboká nad Vltavou

Prodej obchodního prostoru 225 m2, Hluboká nad Vltavou

Nabízíme k prodeji obchodní prostor o výměře 225 m², nacházející se v historickém městě Hluboká nad Vltavou, v blízkosti centra, konkrétně v ulici Masarykova. Tento přízemní prostor má vstup z podloubí historického domu, což dodáv...

7 990 000 Kč za nemovitost

Prodej obchodního prostoru 208 m2, Hluboká nad Vltavou

Prodej obchodního prostoru 208 m2, Hluboká nad Vltavou

Nabízíme k prodeji obchodní prostor o výměře 208 m², nacházející se v historickém městě Hluboká nad Vltavou, v blízkosti centra, konkrétně v ulici Masarykova. Tento přízemní prostor má vstup z podloubí historického domu, což dodáv...

7 400 000 Kč za nemovitost