Prodej komerčního objektu 37 m2, Týn nad Vltavou

5 990 000 Kč za nemovitost

G Mimořádně nehospodárná

Týn nad Vltavou Centrum obce

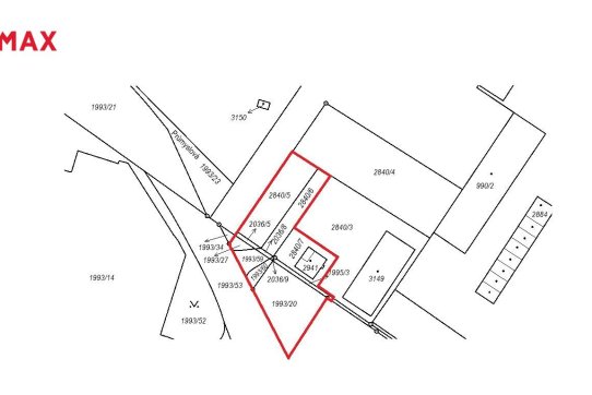
  | mapa

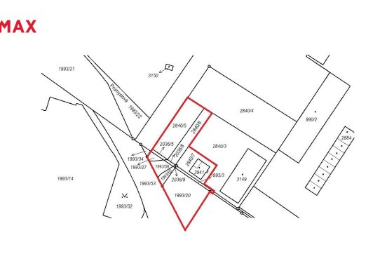
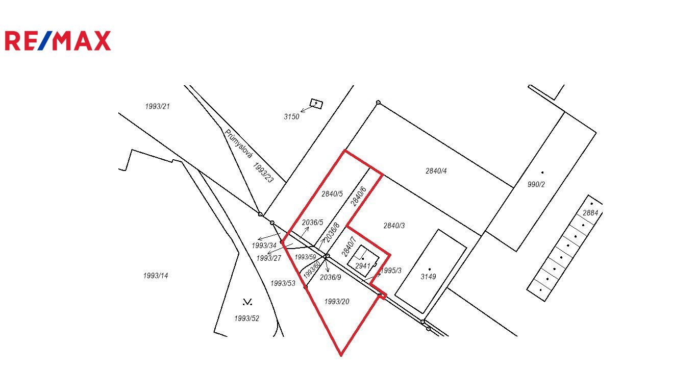
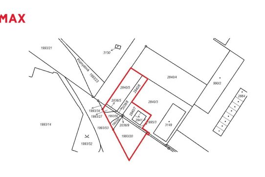
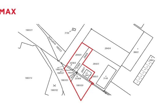
Exkluzivně nabízím ke koupi jedinečnou komerční nemovitost o celkové ploše 669 m2 na velmi lukrativním místě v bezprostřední blízkosti obchodních řetězců Lidl, Penny atd., jehož součástí je budova zkolaudovaná jako prodejna, která je dobře přístupná pro nákladní i osobní dopravu. Objekt byl zkolaudován v roce 2005 a slouží v současnosti jako zázemí pro zaměstnance a vedení firmy. Objekt je dobře viditelný z hlavní komunikace, dobře přístupný pro zákazníky a vhodný pro umístění reklamy. Plochy před prodejnou jsou zpevněné a je zde dostatek parkovacích míst. Velkou výhodou nabídky je možnost výměny za jinou nemovitost s případným doplatkem!

Ve srubu o užitné ploše 37m2, jsou dvě kanceláře včetně sociálního zázemí, kuchyňky a sprchového koutu. Tento zateplený srub má přímou návaznost přístřešku cca 45m2 pro dvě auta. Je vybaven klimatizací. Součástí prodeje je pozemek v zastavitelné oblasti kolem srubu o celkové výměře 629m2. Na tomto pozemku lze postavit reprezentativní budovu, která bude na lukrativním místě v obchodní zóně "vyčnívat".

Objekt je napojen na elektřinu, vodu, kanalizaci. Vytápění je zajištěno klimatizací, což je výhoda, jelikož klimatizace funguje na principu tepelného čerpadla. Ohřev TUV zajišťuje kombinovaný bojler. Ze stavebního hlediska je objekt postaven ve vysokém standardu.

Nabízený objekt je zabezpečen kamerovým systémem se záznamem. Sloužit může, kromě současného využití, jako sídlo firmy, showroom, vzorkovna, dále jako obchodní oddělení atd...

Další výhodou této nabídky je zde možnost zakoupit sousední pozemky jako celek nebo po částech a tím maximalizovat využití celého objektu. Ke všem částem objektu je zajištěna široká přístupová cesta.

Vzhledem k rozdělení nemovitosti se naskýtají výhodné investiční možnosti. Další informace a možnosti prohlídek žádejte u makléře zakázky.

Kontaktujte makléře nemovitosti

Podobné nemovitosti

Prodej komerčního objektu 300 m2, Týn nad Vltavou

Prodej komerčního objektu 300 m2, Týn nad Vltavou

Exkluzivně nabízím ke koupi jedinečnou komerční nemovitost o celkové velikosti 703 m2 na velmi lukrativním místě v bezprostřední blízkosti obchodních řetězců Lidl, Penny atd. Součástí této nemovitosti je montovaná hala, která je d...

4 990 000 Kč za nemovitost

Prodej obchodního prostoru 241,2 m2, Hluboká nad Vltavou

Prodej obchodního prostoru 241,2 m2, Hluboká nad Vltavou

Nabízíme k prodeji obchodní prostor o výměře 241,2 m², nacházející se v historickém městě Hluboká nad Vltavou, v blízkosti centra, konkrétně v ulici Masarykova. Tento přízemní prostor má vstup z podloubí historického domu, což dod...

7 990 000 Kč za nemovitost

Prodej obchodního prostoru 219,4 m2, Hluboká nad Vltavou

Prodej obchodního prostoru 219,4 m2, Hluboká nad Vltavou

Nabízíme k prodeji obchodní prostor o výměře 219,4 m², nacházející se v historickém městě Hluboká nad Vltavou, v blízkosti centra, konkrétně v ulici Masarykova. Tento přízemní prostor má vstup z podloubí historického domu, což dod...

7 400 000 Kč za nemovitost

Hluboká nad Vltavou - Zámostí – prodej stavebního pozemku 1591 m²

Hluboká nad Vltavou - Zámostí – prodej stavebního pozemku 1591 m²

Nabízíme k prodeji exkluzivní pozemek ležící v klidné, rezidenční části obce Hluboká nad Vltavou, Zámostí, v ulici Nádražní. Mírně svažitý pozemek tvaru L, s celkovou výměrou 1591 m2 je dle územního plánu Hluboká nad Vltavou určen...

7 500 000 Kč za nemovitost

Rudolfov u Č. Budějovic – prodej stavebního pozemku 759 m²

Rudolfov u Č. Budějovic – prodej stavebního pozemku 759 m²

Nabízíme k prodeji stavební pozemek ležící v obci Rudolfov, Lesní ulice, dostupný MHD z Českých Budějovic. Svažitý, jižně orientovaný pozemek s celkovou výměrou 759 m2 je z větší části oplocený a je přístupný z obecní komunikace. ...

4 250 000 Kč za nemovitost