Prodej obchodního prostoru 241,2 m2, Hluboká nad Vltavou

7 990 000 Kč za nemovitost

C Úsporná

Hluboká nad Vltavou Centrum obce

  | mapa

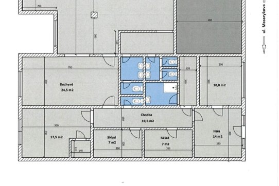
Nabízíme k prodeji obchodní prostor o výměře 241,2 m², nacházející se v historickém městě Hluboká nad Vltavou, v blízkosti centra, konkrétně v ulici Masarykova. Tento přízemní prostor má vstup z podloubí historického domu, což dodává celé lokalitě jedinečný charakter. Výhodou tohoto prostoru je vstupní recepce s okny do ulice, díky které je prostor dostatečně prosvětlený a ideální pro vystavení zboží či reklamy a uvítání pro hosty. Pro tyto účely slouží ještě další dvě místnosti, které mají okna a vstup do ulice. Díky tomu může být Vaše firma nepřehlédnutelná.

Dominantou prostoru je velká vstupní hala, která může sloužit jako hlavní obchodní prostor či kanceláře. Dále zde najdete několik menších místností, které mohou být využity například jako sklady. K dispozici je také prostorné zázemí v podobě velké kuchyně, šatny, toalety a koupelny se sprchou, což zajišťuje pohodlí pro pracovníky. Vytápění je řešeno centrálním plynovým kotlem pro celý dům s rozvody do radiátorů, tímto je řešen i ohřev vody. Dodávka tepla je pro uvedený prostor měřená kalorimetrem.

Vodovod i kanalizace jsou obecní.

Tento prostor je ideální pro firmy, které hledají vhodné místo pro prodejnu, sklad nebo výrobnu. Dostatek prostoru a zázemí v objektu také umožňuje poskytování služeb, např. kavárna, cukrárna, kadeřnictví, barber-shop, zubní laboratoř, kosmetický salon, sportovní aktivity, fitness, vzdělávací centrum, atd... prostor představuje ideální řešení i pro firmy zaměstnávající více pracovníků. Vzhledem k lokalitě a dispozici je možné prostor předělat i na byt, což by mohlo představovat zajímavou investiční příležitost či příležitost k příjemnému bydlení.

Hluboká nad Vltavou je jedním z nejoblíbenějších míst na jihu Čech, známá svým půvabným historickým centrem a ikonickým zámkem, který je vyhledávaným turistickým cílem. Město se pyšní nejen bohatou historií, ale také rozmanitou nabídkou kulturního vyžití, restaurací a obchodů. Okolí nabízí příležitosti pro sportovní a rekreační aktivity, jako je cyklistika nebo procházky v malebné přírodě. Díky své strategické poloze je Hluboká nad Vltavou dobře dostupná a poskytuje návštěvníkům široké možnosti vyžití, což intenzivně přispívá k prosperitě místních podniků a zaručuje dobrou návštěvnost.

V případě zájmu o prohlídku nás neváhejte kontaktovat.

Kontaktujte makléře nemovitosti

Podobné nemovitosti

Prodej nového zděného bytu s dispozicí 2+kk (+ 2 balkony) a parkováním - Nová Vltava, České Budějovi

Prodej nového zděného bytu s dispozicí 2+kk (+ 2 balkony) a parkováním - Nová Vltava, České Budějovi

Nabízíme ke koupi bytovou jednotku s celkovou plochou 72,8 m2, která se nachází ve 4.patře šestipatrového bytového domu v komplexu Nová Vltava, situovaném v těsné blízkosti OC Géčko, v lokalitě s komplexní občanskou vybaveností a ...

6 550 000 Kč za nemovitost

Prodej bytu 3+1 v osobním vlastnictví 65 m², Pražské sídliště, České Budějovice

Prodej bytu 3+1 v osobním vlastnictví 65 m², Pražské sídliště, České Budějovice

Nabízíme ke koupi zrekonstruovanou bytovou jednotku 3+1 ve vyhledávané lokalitě Pražského sídliště na ulici Plzeňská č. p. 621/ 64 v Českých Budějovicích v těsné blízkosti řeky Vltavy. Byt v osobním vlastnictví o užitné ploše 65 m...

5 890 000 Kč za nemovitost

Prodej řadového rodinného domu se zahradou, 2 byty, Dobrá Voda u ČB, ulice Trávní

Prodej řadového rodinného domu se zahradou, 2 byty, Dobrá Voda u ČB, ulice Trávní

Nabízím k prodeji řadový rodinný dům se zahradou a dvěma samostatnými byty, v obci Dobrá Voda u ČB, ulice Trávní. Zastavěná plocha a nádvoří 156 m2, zahrada 201 m2, celková plocha 357 m2. Jedná se o dvoupatrový řadový dům, vystavě...

9 000 000 Kč za nemovitost

Prodej rodinného domu před dokončením, pozemek 1035 m2, Blansko u Kaplice

Prodej rodinného domu před dokončením, pozemek 1035 m2, Blansko u Kaplice

Nabízíme ke koupi rodinný dům před dokončením nacházející se v klidné části obce Blansko u Kaplice v jižních Čechách, okres Český Krumlov. Jedná se o novostavbu samostatně stojícího dvoupodlažního cihlového domu. K domu přiléhá dí...

9 200 000 Kč za nemovitost

Prodej rodinného domu v Klení u Benešova nad Černou

Prodej rodinného domu v Klení u Benešova nad Černou

Nabízíme k prodeji rodinný dům, kolaudovaný v roce 2010, v klidné části obce Klení, 4 km od Benešova nad Černou. Tato nemovitost je ideální pro rodiny s dětmi, které hledají bezpečné a zdravé prostředí pro své potomky. Lze ji využ...

4 990 000 Kč za nemovitost