Prodej novostavby rodinného domu se zahradou - Planá nad Lužnicí, Strkov

10 950 000 Kč za nemovitost

B Velmi úsporná

Planá nad Lužnicí Klidná část obce

  | mapa

Nabízíme ke koupi novostavbu rodinného domu se zahradou, situovanou v rezidenční lokalitě Strkov, části města Planá nad Lužnicí. Objekt je situován na konci slepé ulice (Karasová) a díky tomuto umístění a vyřešené okolní zástavbě, poskytne budoucím majitelům dostatek prostoru pro klidné bydlení.

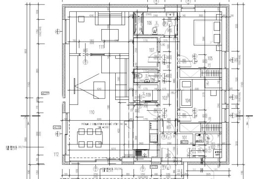
Na pozemku s celkovou plochou 531 m2 se nachází zděná stavba jednopodlažního rodinného domu (kolaudováno v r. 2026) s dispozicí 4+kk (orientační půdorys v obrazové části inzerce) sestávající z:

- vstupní chodby (zádveří)

- centrální chodby objektu

- světlého a prostorného obývacího pokoje s navazující kuchyňskou (příprava pro kuchyňskou linku ve tvaru L) a jídelní část, spíží a také se vstupem na krytou jižně orientovanou terasu

- 3 samostatných pokojů (ložnice, dětské pokoje, pracovna)

- koupelny s umyvadlem, vanou a WC

- dalšího samostatného WC

- místnosti s variabilní možností využití (šatna, komora – sklad)

- technické místnosti s plynovým kotlem (Protherm) a zásobníkem na teplou vodu (120 l)

Při stavbě nemovitosti byl kladen důraz na detail a kvalitu použitých materiálů, stejně jako na budoucí úsporu provozních nákladů domu. Objekt je postaven ze zdiva Porotherm 300 a zateplený fasádní tepelnou izolací s tloušťkou 200 mm. Má okna s izolačními trojskly ( s přípravou na venkovní žaluzie) a zateplené podhledy. Střešní krytina – betonová střešní taška Tondach. Vytápění je zajištěno podlahovým topením. Díky tomu splňuje energetickou náročnost třídy B – velmi úsporný.

Na zahradě u domu je (za elektricky ovládanou vjezdovou bránou) zpevněné parkovací stání pro 2 automobily a také podzemní retenční nádrž na dešťovou vodu.

Nemovitost je připojena na veřejný rozvod elektřiny, plynu, vody a kanalizace. Přístup z místní veřejné komunikace.

Strkov je část Plané nad Lužnicí, převážně zastavěná novějšími rodinnými domy. Lokalita nabízí klidné rezidenční bydlení s občanskou vybaveností (škola, školka, obchody, zastávka MHD a vlaková zastávka), přitom v blízkosti přírody (zámecký park, rybníky). Díky kombinaci dostupnosti do Tábora (10 min) a kvalitnímu napojení na dopravní síť (dálnice D3 Praha – České Budějovice) je Strkov atraktivním místem pro rodinné bydlení. Pro další informace, nebo v případě zájmu o prohlídku nemovitosti, kontaktujte prosím makléře nabídky.

Prodávající si vyhrazuje právo vybrat kupujícího na základě jím zvolených kritérií.

Kontaktujte makléře nemovitosti

Podobné nemovitosti

Prodej souboru nemovitostí v centru Lišova, náměstí Míru, celková plocha 820 m².

Prodej souboru nemovitostí v centru Lišova, náměstí Míru, celková plocha 820 m².

Nabízím k prodeji soubor nemovitostí situovaný přímo na náměstí Míru v Lišově, celková plocha 820 m². Celek tvoří hlavní budova – zast. plocha 272 m2; vedlejší objekt, přímo napojený na hlavní - zast. plocha 84 m2; dvorek - 160 m2...

11 900 000 Kč za nemovitost

Prodej souboru nemovitostí v centru Lišova, náměstí Míru, celková plocha 820 m².

Prodej souboru nemovitostí v centru Lišova, náměstí Míru, celková plocha 820 m².

Nabízím k prodeji soubor nemovitostí situovaný přímo na náměstí Míru v Lišově, celková plocha 820 m². Celek tvoří hlavní budova – zast. plocha 272 m2; vedlejší objekt, přímo napojený na hlavní - zast. plocha 84 m2; dvorek - 160 m2...

11 900 000 Kč za nemovitost

Prodej rodinného domu 7+1 s velkou zahradou, Hvozdec u Lišova

Prodej rodinného domu 7+1 s velkou zahradou, Hvozdec u Lišova

Nabízím k prodeji velkorysý rodinný dům ve Hvozdci u Lišova. Dům má dispozici 7+1, velkou zahradu, dvojgaráž a přístřešek pro další dvě auta. Celková užitná plocha domu je 220 m2. Celková velikost pozemku je 2 087 m2. Hvozdec u Li...

13 990 000 Kč za nemovitost