3+1 Pražské předměstí – prodej prostorného bytu s balkonem poblíž centra města

5 980 000 Kč za nemovitost

C Úsporná

České Budějovice Centrum obce

  | mapa

Exkluzivně nabízíme slunný byt 3+1 s komorou, jídelnou a balkonem umístěný v klidné a žádané lokalitě Pražského předměstí, na rohu ulic Pražská tř. a Staroměstská, v docházkové vzdálenosti do centra města.

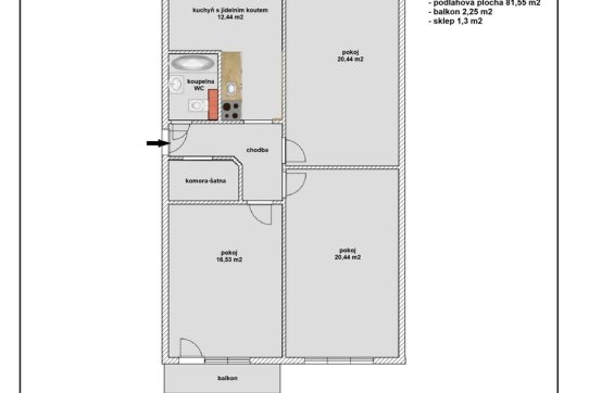
Byt v osobním vlastnictví o celkové ploše 85 m2 (podlahová plocha 81,55 m2, balkon 2,25 m2 a sklep 1,3 m2) se nachází ve 3. patře panelového domu a je orientován na jih a sever.

Sestává se z předsíně, komory (šatny), třech prostorných, neprůchozích pokojů, koupelny s WC a z kuchyně s jídelnou. Prodává se vybavený kuchyňskou linkou se spotřebiči (horkovzdušná trouba, plynová varná deska, digestoř). Dispozici bytu s rozměry jednotlivých místností najdete na přiloženém orientačním půdorysu.

Provedené úpravy: vyzděné původní koupelnové jádro (před cca 12ti lety), rozvody elektřiny jsou nové pouze v kuchyni a koupelně, letos proběhla výměna kuchyňské linky, podlahových krytin a interiérových dveří.

Celkové měsíční náklady na provoz bytu jsou cca 5.100 Kč (4 osoby) + elektřina a plyn na vaření. Z toho poplatek do fondu oprav činí 1.657 Kč.

Hlavní předností této nemovitosti je výborné dispoziční řešení a umístění v jedné z nejlukrativnějších lokalit ve městě a to díky bezvadné dostupnosti jak do centra, tak do přírody a to zejména díky cyklostezce podél řeky Vltavy. Na náměstí je to pěšky cca 10 min, do OC IGY 3 min.

V okolí je veškerá občanská vybavenost a parkování je pro rezidenty na vyhrazených parkovacích zónách. V případě zájmu o bližší informace nebo prohlídku uvedeného bytu kontaktujte makléře nabídky.

Kontaktujte makléře nemovitosti

Podobné nemovitosti

Prodej bytu 3+kk, 78 m2, OV, ul. Žižkova

Prodej bytu 3+kk, 78 m2, OV, ul. Žižkova

Nabízíme vám k prodeji zděný byt v žádané lokalitě v centru města. Byt o dispozici 3+kk a ploše 78 m2 se nachází ve druhém nadzemním podlaží (1.patře) čtyřpatrové budovy. Do bytu se vchází předsíní (7 m2), ze které je přístup do k...

5 200 000 Kč za nemovitost

Byt 4+1, Branišovská s lodžií a komorou, 88,34 m2, osobní vlastnictví

Byt 4+1, Branišovská s lodžií a komorou, 88,34 m2, osobní vlastnictví

Nabízím k prodeji byt 4+1, ulice Branišovská, 88,34 m2, osobní vlastnictví, 1. patro s výtahem, lodžie, komora. Čistá výměra bytu 79,66 m2 + lodžie 5,6 m2 + sklep 3,08 m2. Byt se nachází na sídlišti Šumava, bezprostředně u areálu ...

5 890 000 Kč za nemovitost

Prodej bytu 3+1, 66 m2, převod do OV, sídl. Šumava, ul. Větrná

Prodej bytu 3+1, 66 m2, převod do OV, sídl. Šumava, ul. Větrná

Nabízím Vám exkluzivně k prodeji slunný byt v okrajové části sídliště Šumava, v blízkosti Jihočeské univerzity. Družstevní byt o dispozici 3+1 s velkou předsíní se nachází ve 3.patře (8.pater) zrekonstruovaného panelového domu. By...

4 200 000 Kč za nemovitost

fond oprav 1968,- Kč/měs

Prodej bytu 3+1 s lodžií, 68 m2, Suché Vrbné

Prodej bytu 3+1 s lodžií, 68 m2, Suché Vrbné

Nabízíme k prodeji prostorný a pohodlný byt 3+1 v osobním vlastnictví, ideální pro rodiny s dětmi. Byt se nachází ve druhém patře šestipodlažního zděného bytového domu v klidné a příjemné lokalitě Suchého Vrbného, konkrétně v ulic...

5 300 000 Kč za nemovitost

Pozemek 2 207 m² se stavením k rekonstrukci či demolici, Staré Hodějovice – 6 km od centra ČB

Pozemek 2 207 m² se stavením k rekonstrukci či demolici, Staré Hodějovice – 6 km od centra ČB

Hledáte místo, kde si vytvoříte vlastní domov, nebo investici s velkým potenciálem? Ve Starých Hodějovicích, jen 6 km od centra Českých Budějovic, nabízíme k prodeji dům z roku 1919 na pozemku o celkové výměře 2 207 m². Nemovitost...

7 850 000 Kč za nemovitost