
Nabízíme ke koupi slunný byt v osobním vlastnictví, umístěný v panelovém domě v klidné lokalitě města Suchdol nad Lužnicí, Sídliště 17 listopadu. Obec se nachází v CHKO Třeboňsko a je vzdálená 18 km od Třeboně a 11 km od hranic s Rakouskem.
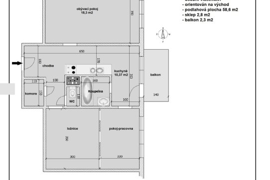
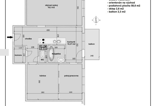
Byt s původní dispozicí 2+1 byl upraven (ložnice byla sádrokartonovou příčkou rozdělena na dva pokoje) a je o podlahové ploše 58,6 m2 + sklep 2,8 m2 + balkon 2,3 m2. Umístěný je v 1. patře čtyřpodlažního domu. Sestává se z předsíně, obývacího pokoje, ložnice a malého pokoje, kuchyně se vstupem na balkon, komory, koupelny s vanou a samostatného WC. Orientovaný je na východ (balkon). Dispoziční řešení s orientační plochou jednotlivých místností najdete na přiloženém půdorysu.
Nabízený byt prošel před několika lety rekonstrukcí, kdy bylo vyzděné původní koupelnové jádro, upravená dispozice a vyměněné podlahové krytiny a kuchyňská linka. Dům je po celkové revitalizaci – plastová okna, zateplení fasády, výměna výtahu a balkonů (v r. 2023). Byt se prodává včetně vybavení (není podmínkou).
Náklady na provoz bytu jsou celkem cca 4.411 Kč / měsíc + spotřeba elektřiny (z toho poplatek do fondu oprav činí 1.462 Kč).
Byt doporučuji zájemcům, kteří hledají bydlení v klidné lokalitě v dosahu přírody v malebné krajině Třeboňské pánve s množstvím lesů, rybníků a krásného koupání v nedalekých pískovnách. V případě zájmu o bližší informace nebo prohlídku uvedeného bytu kontaktujte makléře nabídky.
Nabízíme k prodeji výjimečný stavební pozemek o celkové ploše 2 485 m2 (zastavitelná plocha 1 200 m2), který sestává ze dvou sousedních pozemků nacházejících se na okraji obce Františkov, poblíž Suchdola nad Lu...
2 490 000 Kč za nemovitost
Nabízíme ke koupi zděný byt v osobním vlastnictví umístěný v ul. Sídliště míru v Nových Hradech. Byt s dispozicí 3+1 s celkovou plochou 75,64 m² (dva sklepy 6,8 m² a balkon 2,7 m²) se nachází ve 2. patře star�...
2 990 000 Kč za nemovitost
+ možnost přikoupení garáže za 350.000 Kč
Nabízíme k prodeji byt v osobním vlastnictví o dispozici 2 + kk, situovaný na adrese Budovatelská 1096 v Trhových Svinech. Tento byt, o celkové ploše 44,5 m², představuje skvělou investiční příležitost s potenci�...
3 299 000 Kč za nemovitost
Exkluzivně nabízíme prodej chaty v rekreační oblasti Malče. Chata se nachází v malebné lokalitě, v blízkosti tiché řeky Malše, v klidné chatové osadě pouze o deseti chatách. Chata stojí na vlastním pozemku o 66...
3 200 000 Kč za nemovitost
Nabízíme ke koupi rodinný dům určený ke kompletní rekonstrukci, spojené s případným rozšířením (vybudování obytného podkroví) objektu. Nemovitost se nachází v obci Nové Homole, v lokalitě s komplexní občan...
1 600 000 Kč za nemovitost