Skladovací a výrobní prostory k pronájmu, Týn nad Vltavou

100 Kč za m2 za měsíc

A Mimořádně úsporná

Týn nad Vltavou Okraj obce

  | mapa

Exkluzivně nabízíme k pronájmu nové, moderní skladovací a výrobní prostory ve vyhrazené části průmyslové výrobní haly v Týně nad Vltavou. Součástí pronájmu je až 5 kanceláří (každá o velikosti 30m2), společná kuchyňka a zasedací místnost (o velikosti 90m2). K dispozici je až 40 parkovacích míst.

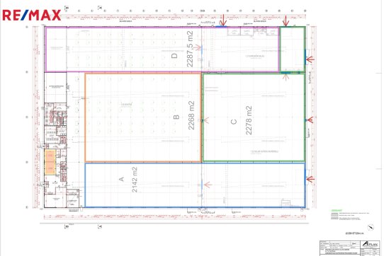
Plocha prostor k pronájmu činí 2.142m2. Sektor A (viz přiložený plánek).

Je rovněž možné pronajmout části B+C (o velikosti 4.546m2) dle přiloženého plánku, nebo celý prostor o velikosti 6.688 m2.

Prostory jsou protipožární stěnou rozdělené na 2 části.

Prostory mají samostatný vjezd pro nákladní a kamionovou dopravu a samostatný vchod pro personál. K dispozici je také společné sociální zařízení pro celou budovu.

Budova je vytápěna a klimatizována, je vhodná pro výrobní či skladové účely, pro uskladnění materiálu, strojů. Důkladná izolace a stavební materiály udržují konstantní teplotu a vlhkost, objekt splňuje požární normy.

Budova je uzamykatelná a přístup ke vjezdovým vratům oplocený pro zvýšenou ochranu.

Budova se nachází v průmyslové zóně na okraji obce Týn nad Vltavou - Malá Strana, s dobrou dostupností do centra Týna nad Vltavou i do okolních měst jakou jsou Bechyně, Soběslav, Vodňany, Písek, České Budějovice a Veselí nad Lužnicí, kde se nachází i nájezd na dálnici D3.

Měsíční nájemné činí 100 Kč/m2/měsíc. K uvedenému nájemnému je nutno připočítat DPH v zákonné výši.

Měsíční zálohy na služby činí 11 Kč/m2/měsíc.

Pronajímatel požaduje vratnou kauci ve výši 1 měsíčního nájmu.

Prostory o velikosti 2.142m2 jsou k dispozici ihned, ostatní od 01.06.2026.

Informace a možnosti prohlídek žádejte u makléře zakázky.

Kontaktujte makléře nemovitosti

Podobné nemovitosti

Skladovací a výrobní prostory k pronájmu, Týn nad Vltavou

Skladovací a výrobní prostory k pronájmu, Týn nad Vltavou

Exkluzivně nabízíme k pronájmu nové, moderní skladovací a výrobní prostory ve vyhrazené části průmyslové výrobní haly v Týně nad Vltavou. Součástí pronájmu je 5 kanceláří (každá o velikosti 30m2), společná kuchyňka a zasedací míst...

100 Kč za m2 za měsíc

Pronájem kanceláře 66 m2, České Budějovice

Pronájem kanceláře 66 m2, České Budějovice

Nabízím k pronájmu kancelářské prostory v širším centru Českých Budějovic hned vedle nákupního centra IGY. Velikosti jednotlivých kanceláří i jejich počet se po dohodě s pronajímatelem mohou přizpůsobit požadavkům nájemce. Pronajm...

116 Kč za m2 za měsíc

Pronájem kanceláře 42 m2, České Budějovice

Pronájem kanceláře 42 m2, České Budějovice

Nabízím k pronájmu kancelářské prostory v širším centru Českých Budějovic hned vedle nákupního centra IGY. Velikosti jednotlivých kanceláří i jejich počet se po dohodě s pronajímatelem mohou přizpůsobit požadavkům nájemce. Pronajm...

116 Kč za m2 za měsíc