
Nabízíme prodej rodinného domu Praha Řepy, Gallašova ulice.
Jedná se o dvoupodlažní dům o užitné ploše cca 180 m2, který může být využit pro jednu rodinu s dispozicí 6+1 nebo rozdělen na dvě samostatné bytové jednotky s vlastním vchodem. Bytová jednotka v 1. NP je o velikosti 2+1 (72 m2) a druhá bytová jednotka umístěna ve 2.NP o velikosti 3+kk (65 m2). V 1. PP (suterénu) domu se nachází garsonka (27 m2) a ateliér se sociálním zázemím (21 m2) a mají jeden samostatný vstup. Celková výměra pozemku je 496 m2, z toho zahrada činí 292 m2. Na pozemku se nachází doplňková stavba – dílna, zahradní domek.
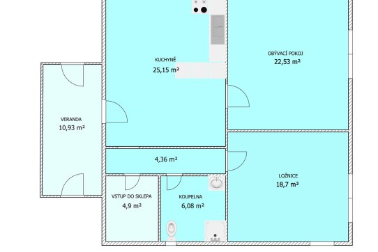
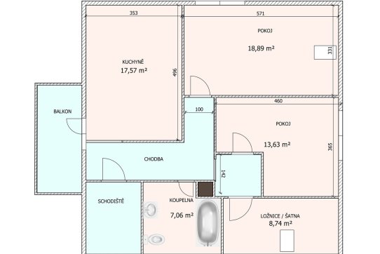
Orientační dispozici s rozměry jednotlivých místností najdete na přiloženém půdorysu.
Dům byl kolaudován v roce 1960 a prošel v průběhu let renovací: elektřina v mědi, odpady v plastu, zvuková izolace mezi částí bytů, větší část oken. SPodní byt prošel celkovou rekonstrukcí: kuchyňská linka, koupelna, podlahy, štuky, okna.
Byt 3+1 byl rozšířen před cca 16 roky, garsonka a ateliér vybudovány před cca 10 roky. Každá bytová jednotka, garsonka i ateliér mají vlastní měření a bojler. Celý dům vytápí jeden plynový kotel z roku 2020.
Dům je napojen na veškeré sítě vč. plynu. Zastávka autobusu č. 164 je od domu cca 130 m.