
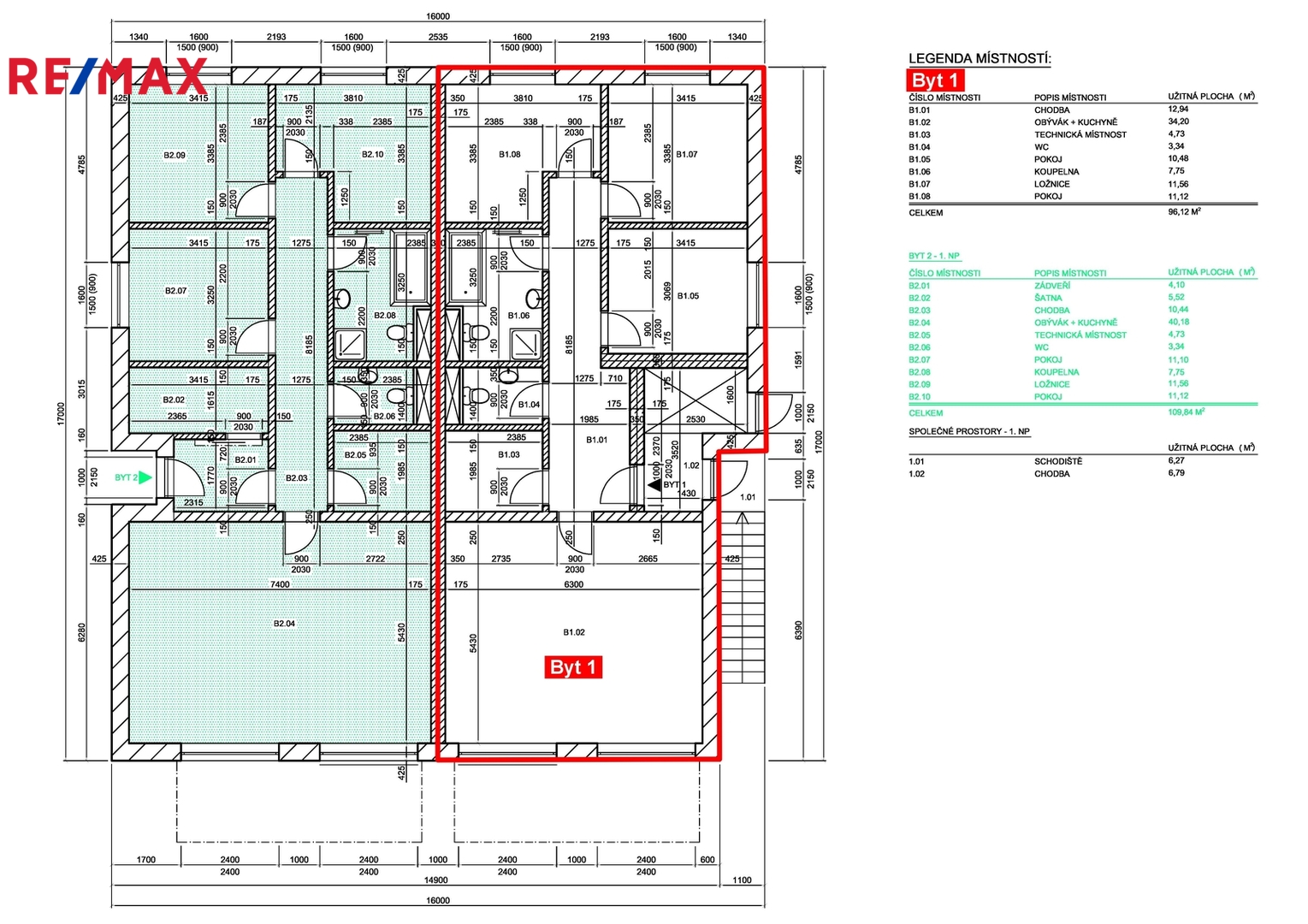
Nabízím k pronájmu nadstandardní nový byt 4+kk (96 m2) se zahradou (178 m2) a dvěma parkovacími místy. Bytová jednotka se nachází v 1.NP novostavby Viladomu Leona, v ulici U Bašty 2927, ve výjimečné lokalitě, kde jste jen několik stovek metrů od obchodní zóny Globus a přitom v naprostém klidu s výhledem na Vrbenské rybníky. Byt má samostatný vstup. Ve výhradním užívaní nájemce jsou dvě zahrady. Jedna před domem, kam je přímý vstup z obývacího pokoje a druhá za domem. Do výhradního užívání patří i 2 parkovací místa na parkovací ploše před domem.
Dispozičně je byt řešen jako 4+kk, kde najdete částečně vybavený obývací pokoj s kvalitní, kompletně vybavenou, kuchyňskou linkou a vstupem na prostornou terasu, tři samostatné pokoje, technickou místnost s přípojkou na pračku, koupelnu s WC, vanou i sprchovým koutem a druhé samostatné WC. Půdorys a výměry místností najdete ve fotogalerii. V celé jednotce jsou na podlaze kvalitní dlažby a lepený vinyl, bezfalcové vnitřní dveře Sapeli a LED osvětlení. Okna plastová s trojsklem.
Ohřev teplé vody je zajištěn elektrickým bojlerem umístěným v technické místnosti. O tepelnou pohodu v chladných dnech se starají elektrické podlahové topné folie s možností přesné regulace termostaty umístěnými v každé místnosti. V teplých letních dnech oceníte venkovní elektricky ovládané předokenní žaluzie na všech oknech. O příjemné klima po celý rok se postará rekuperace vzduchu.
Bonusem této jednotky je její připojení na samostatnou malou fotovoltaickou elektrárnu (4,1 kWp) instalovanou na střeše objektu, která pomůže budoucímu nájemci výrazně snížit účet za elektřinu.
Pouze pro nekuřáky bez domácích mazlíčků. Nájemní smlouva minimálně na 1 rok. Nájemné 34 000 Kč + záloha na energie 5 000 Kč, vratná kauce 50 000 Kč. Provize RK 1x měsíční nájem. Pro další informace nebo termín prohlídky kontaktujte makléře.
Pronájem nového bytu s terasou a parkováním – Rezidence Nová Branišovská Nabízíme pronájem nového zděného bytu 2+kk s terasou a parkovacím stáním v podzemní garáži, vše v novostavbě bytového domu situované...
20 000 Kč za měsíc
Nabízíme k pronájmu kancelářské prostory č. 223 o výměře 63,5 m2. Kancelář se nachází v 2.NP administrativní budovy v Kubatově ul. blízko centra ČB. Kanceláře jsou situovány v širším centru ČB, 5min pěšk...
24 000 Kč za m2 za rok
+služby 1090Kč/m2/rok
Nabízíme k pronájmu kancelářské prostory č. 117 o výměře 210,4 m2. Kancelář se nachází v 1.NP administrativní budovy v Kubatově ul. blízko centra ČB. Kanceláře jsou situovány v širším centru ČB, 5min pěš...
24 000 Kč za m2 za rok
+služby 1090Kč/m2/rok
Nabízím k pronájmu byt 3+kk s lodžií, v novostavbě Na Zlaté stoce v Českých Budějovicích, 70,6 m2 + lodžie + sklep, v 5. patře s výtahem. Byt je zajímavý svou polohou - klidné místo v těsné blízkosti Stromovky...
18 000 Kč za měsíc
Nabízím pronájem obchodního prostoru o výměře 43 m2 v přízemí historického domu na náměstí Přemysla Otakara II. v bezprostředním centru Č. Budějovic na prestižní adrese. Tento prostor je vhodný jako obchod, k...
27 000 Kč za měsíc