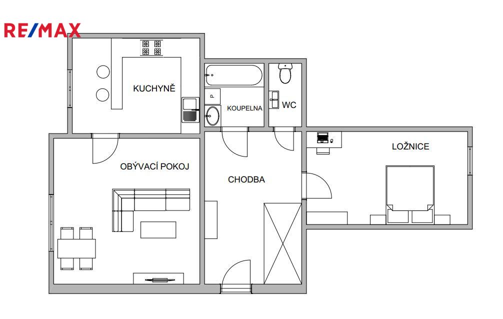
Pronájem bytu 2+1 s chráněným parkovacím stáním ve vnitrobloku, 65m², Plzeň Černická ul.

19 000 Kč za měsíc

nízká provize RK

G Mimořádně nehospodárná

Plzeň Centrum obce

  | mapa

Exkluzívně nabízíme k pronájmu moderní byt o dispozici 2+1 o podlahové ploše 65 m²

Byt je prostorný a nadstandardně zařízený. Kuchyň je vybavena vestavnými spotřebiči, v koupelně je k dispozici pračka. Byt je z části vytápěn podlahovým topením. Nachází se ve 3.patře cihlového domu v Černické ulici v Plzni.

K bytu náleží jedno parkovací stání, které se nachází ve vnitrobloku. S ohledem k poloze blízko centra je chráněné parkovací stání velikou výhodou.

Měsíční zálohová platba za vodu, topení a společné prostory je 3.874,- Kč plus záloha na el. energii.

Kauce činí dva měsíční nájmy.

Pokud máte zájem o prohlídku či více informací, kontaktujte makléřku nabídky.

Kontaktujte makléře nemovitosti