Prodej pozemku pro bydlení č. 469/17, 1258 m2, Hluboká nad Vltavou

8 000 Kč za m2

Hluboká nad Vltavou Klidná část obce

  | mapa

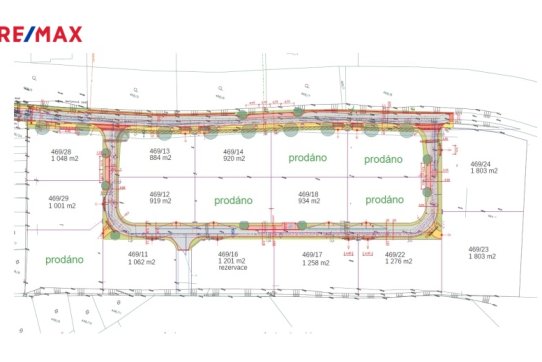
Nabízíme k prodeji kompletně zasíťované stavební pozemky určené k bydlení v malebné lokalitě Hluboké nad Vltavou, v blízkosti zámeckého parku. Celková plocha pozemku s číslem 469/17 činí 1.258 m² a poskytuje tak dostatek prostoru pro realizaci vysněného domova. Pozemek je kompletně zasíťován, je připojen na veškeré inženýrské sítě, včetně plynu, elektřiny, vodovodu, kanalizace a optického kabelu.

V této rezidenční lokalitě se nachází 17 stavebních parcel, které jsou pečlivě uspořádány tak, aby poskytly dostatečné soukromí a možnost výstavby rodinných domů podle individuálních představ. V bezprostřední blízkosti se nachází nejen zámecký park, ale také mateřská školka, základní škola, cyklostezka, cukrárna, které činí tuto lokalitu ideální pro rodinné bydlení.

Dostupnost občanské vybavenosti je výborná díky nedaleké nákupní zóně a hlavní třídě, kde se nachází úřady a další důležité služby. Bezproblémová dopravní obslužnost je zajištěna vlakem, autobusem, ale také například blízkým přístupem na dálnici.

Parcela je přístupná z asfaltové komunikace. Na hranici pozemku je kaplička s přípojkou elektřiny a plynu a je přivedena přípojka vody a kanalizace. Internetové připojení je zajištěno optickým kabelem.

Další volné parcely a možnosti prohlídek k doptání u makléře zakázky.

Kontaktujte makléře nemovitosti

Podobné nemovitosti

Prodej pozemku pro bydlení, č. 469/12, 919 m2, Hluboká nad Vltavou

Prodej pozemku pro bydlení, č. 469/12, 919 m2, Hluboká nad Vltavou

Nabízíme k prodeji kompletně zasíťované stavební pozemky určené k bydlení v malebné lokalitě Hluboké nad Vltavou, v blízkosti zámeckého parku. Celková plocha pozemku s číslem 469/12 činí 919 m² a poskytuje tak dostatek prostoru pr...

8 000 Kč za m2

Prodej pozemku pro bydlení č. 469/13, 884 m2, Hluboká nad Vltavou

Prodej pozemku pro bydlení č. 469/13, 884 m2, Hluboká nad Vltavou

Nabízíme k prodeji kompletně zasíťované stavební pozemky určené k bydlení v malebné lokalitě Hluboké nad Vltavou, v blízkosti zámeckého parku. Celková plocha pozemku s číslem 469/13 činí 884 m² a poskytuje tak dostatek prostoru pr...

8 000 Kč za m2

Pronájem zděného bytu 1+kk, U Trojice, ČB

Pronájem zděného bytu 1+kk, U Trojice, ČB

Nabízím pronájem velké, částečně zařízené, garsonky s podlahovou plochou 44 m2, která se nachází ve druhém patře zděného bytového domu v klidné ulici U Trojice, v Českých Budějovicích. Součástí garsonky je prostorné zádveří, koupe...

9 000 Kč za měsíc

+ záloha na energie 2500 Kč

Pronájem kanceláře 38,4 m2 v centru města ČB, Dr. Stejskala

Pronájem kanceláře 38,4 m2 v centru města ČB, Dr. Stejskala

Nabízíme k pronájmu kancelář o velikosti 38,4 m² ve 5. nadzemním podlaží administrativní budovy, která se nachází v centru města České Budějovice, konkrétně v historické a zrekonstruované budově v ulici Dr. Stejskala. Objekt je po...

5 500 Kč za měsíc

+ 600,- serv. poplatky + 2000,- zálohy na energie + 7000,- kauce

Pronájem zděného bytu 2+1, 60 m², ulice Na Točně, Rudolfov u Českých Budějovic

Pronájem zděného bytu 2+1, 60 m², ulice Na Točně, Rudolfov u Českých Budějovic

Nabízím k pronájmu zděný byt 2+1, 60 m², v 1. patře domu, ulice Na Točně, Rudolfov u Českých Budějovic. Jedná se o velmi pěkný a útulný byt situovaný v centru Rudolfova u kostela. Byt se nachází v místě s dobrou obslužností. Zastá...

11 500 Kč za měsíc