Prodej objektu k rekreaci, 400 m2, Hranice u Nových Hradů

9 500 000 Kč za nemovitost

G Mimořádně nehospodárná

Hranice

  | mapa

Exkluzivně nabízíme k prodeji objekt v obci Hranice u Nových Hradů.

Tento dům sloužil v minulosti jako hostinec, cca před 22 lety byl opraven a přestavěn. Dnes slouží objekt k trvalému bydlení (bytová jednotka o dispozici 3+1). Část domu je využívána ke komerčnímu pronájmu. Nachází se zde 3 bytové k dlouhodobému pronájmu a 3 bytové jednotky ke krátkodobému pronájmu přes cestovatelské portály.

K nemovitosti náleží rozlehlý pozemek o rozloze 2.783 m2, kde je k dispozici přírodní jezírko- rybník, velký výběh pro chov slepic, altánek, pergola, udírna a garáž či dílna. Je zde dostatek prostoru pro pěstování plodin, či výstavbu dětského hřiště nebo bazénu. Rozloha pozemku nabízí v tomto směru široké využití.

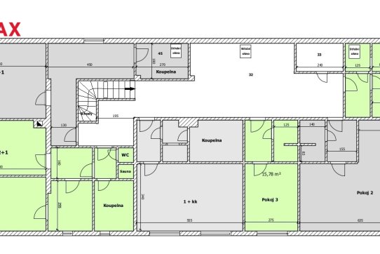
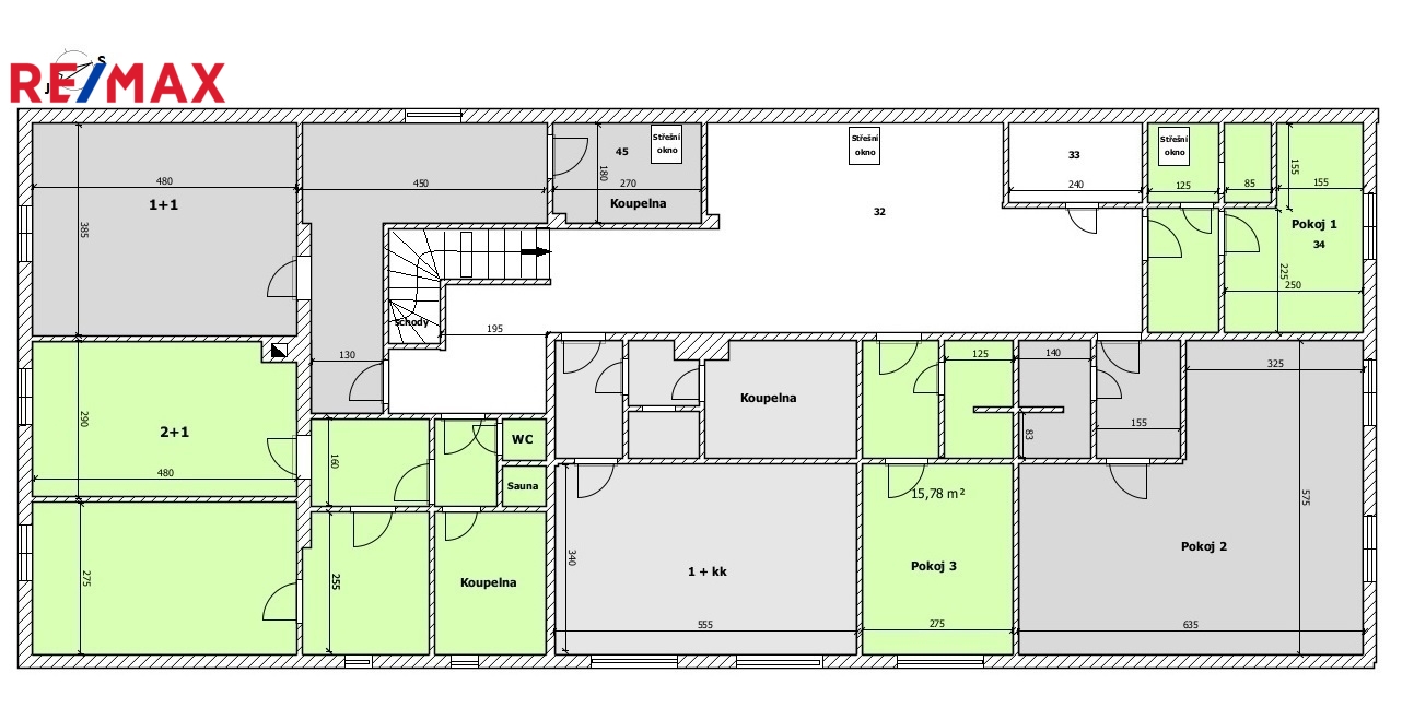
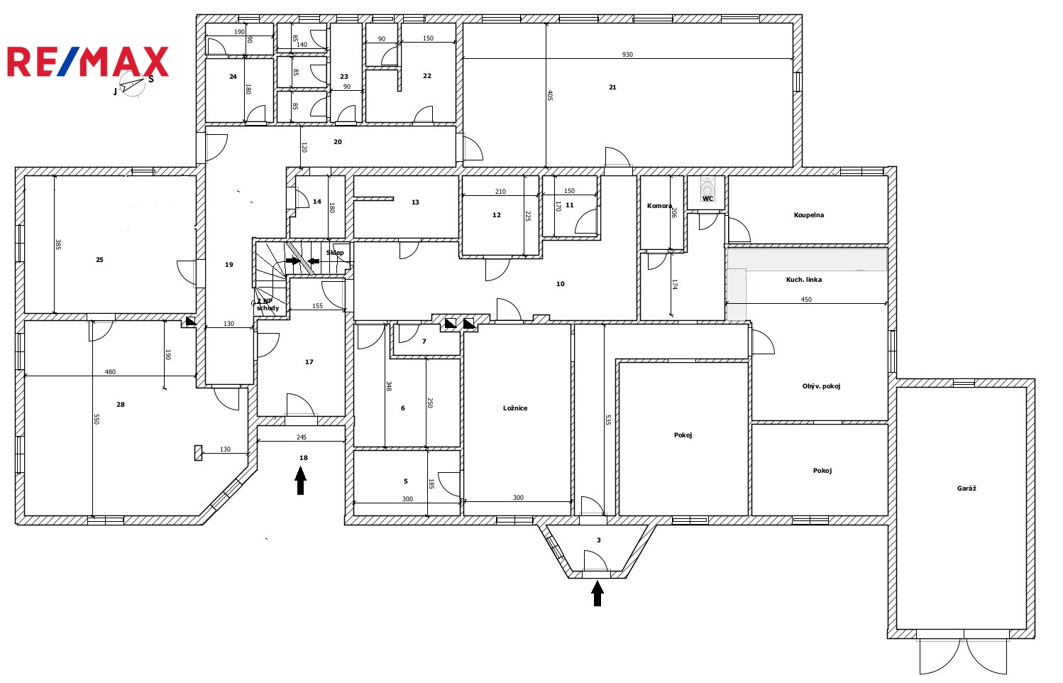
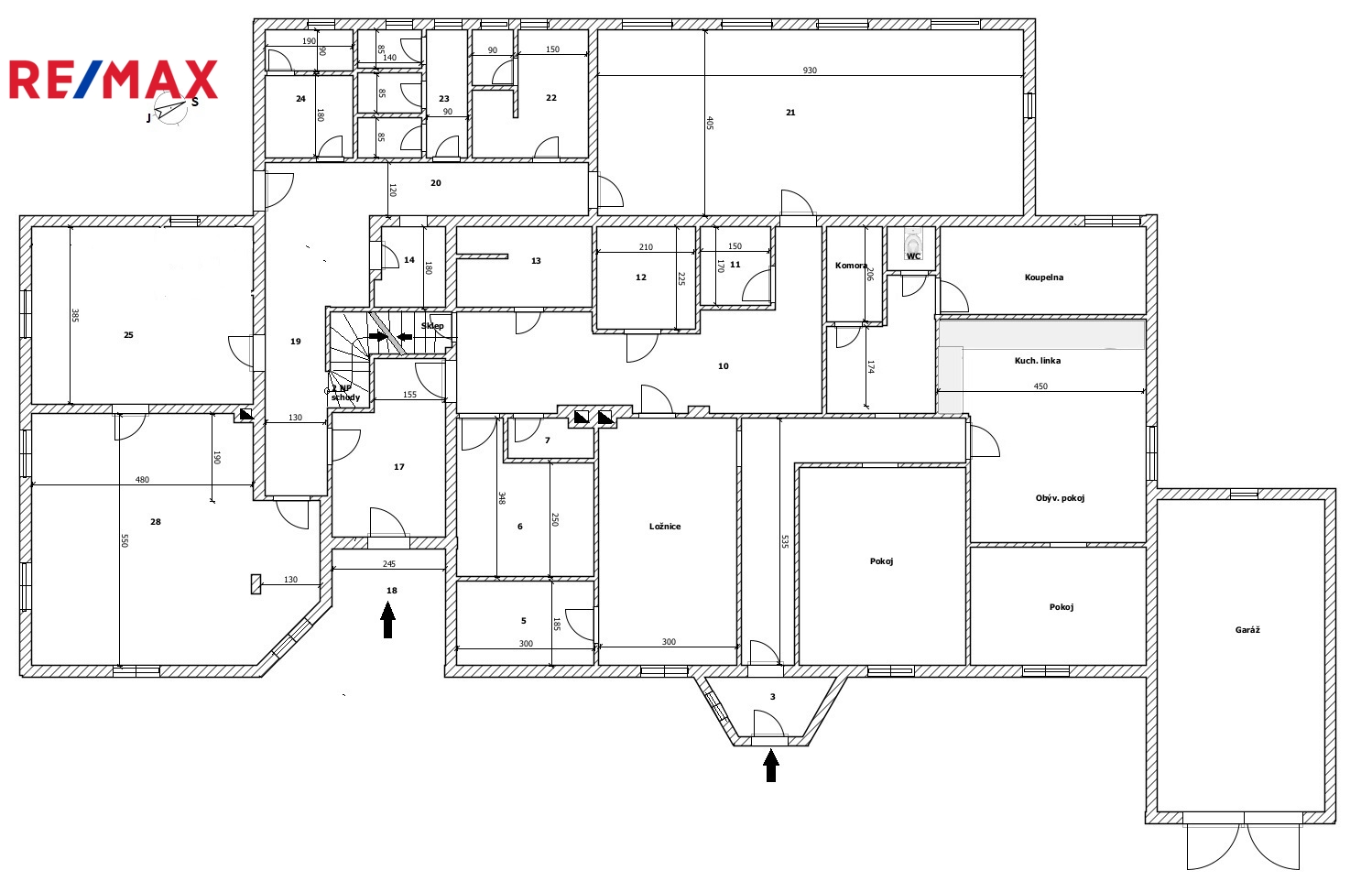
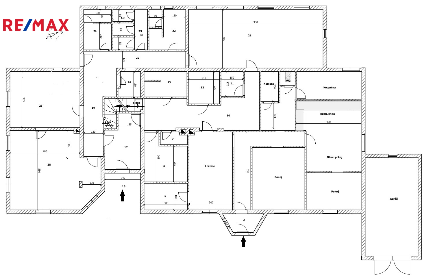
Dům má 2 podlaží a dispozici 400 m2.

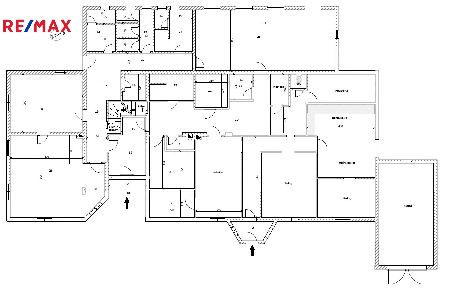
1. patro

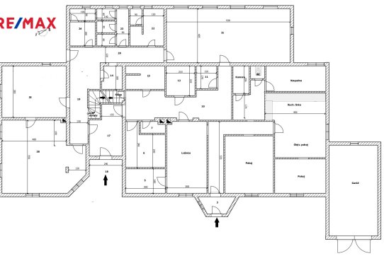
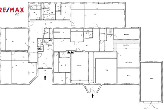
V přízemí, vedle hlavního vchodu se nachází společenská místnost, která dříve sloužila jako restaurace. Některé původní prvky tohoto využití zde byly zachovány a tak je možné takový provoz obnovit či využít k různým společenským akcím a teambuildingům. Dominantou této místnosti je krb, který v chladnějších měsících navozuje jak teplo, tak příjemnou atmosféru. K dobré obslužnosti napomáhá menší, částečně vybavená kuchyň, která na tuto místnost navazuje.

Dále jsou v přízemí oddělené toalety a další společenská místnost - klubovna, kde je dominantou velký pingpongový stůl a vstup na rozlehlou venkovní terasu, kde je dostatek prostoru pro společenské posezení či relax.

Nachází se zde i sklep se vstupem na zahradu, který je možno využít jako kolárnu a dále je zde kotelna - dům je vytápěn kotlem na tuhá paliva.

Samostatný vchod vedle hlavního vstupu má v přízemí i bytová jednotka, která je momentálně využívaná k trvalému bydlení. Tato jednotka má dispozici 3+1.

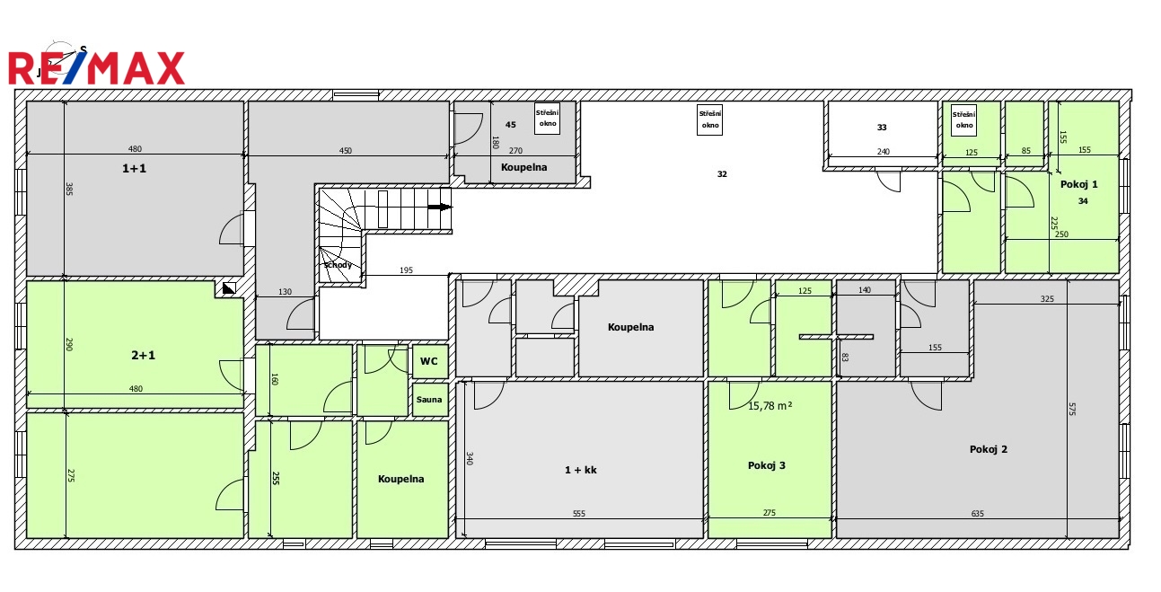
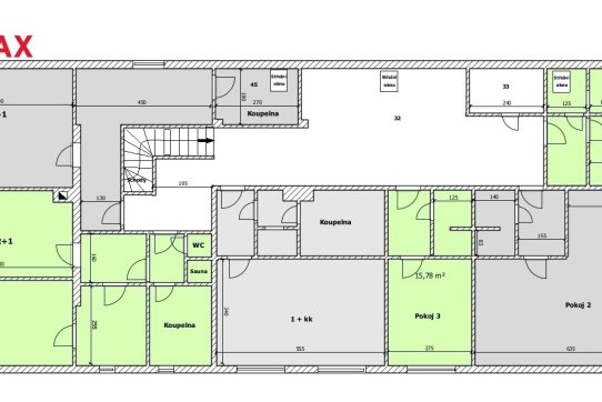
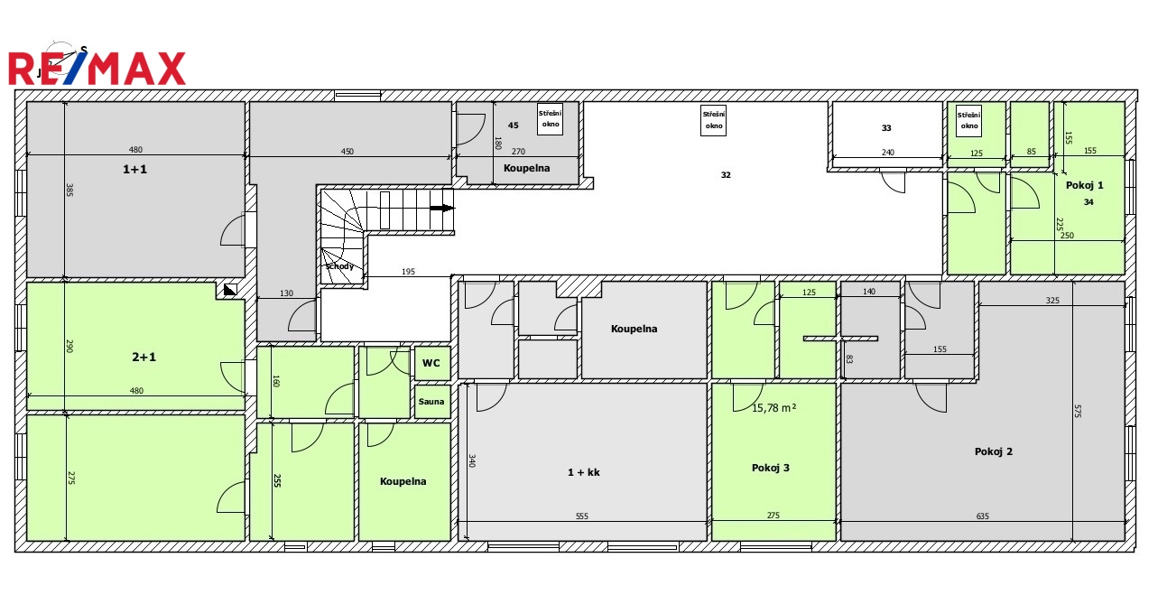
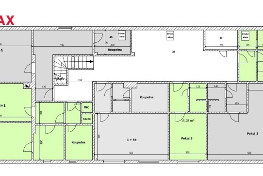
2.patro

Ve druhém patře se nachází 3 bytové jednotky, 2x 1+kk a 2+kk - tyto byty momentálně obývají trvalí nájemníci. Dále jsou zde 3 samostatné pokoje jako ubytování pro hosty, určené ke krátkodobým pobytům, provozované přes portál Airbnb. Tyto pokoje jsou vybaveny vlastní koupelnou a manželskou postelí či samostatnými lůžky.

Tyto prostory propojuje společná místnost, která je v tuto chvíli zaměřená na dětské aktivity - postýlka, přebalovací pult, hračky, knihovna a je zde i menší úložný prostor - komora.

Výhodou tohoto objektu je jeho široká možnost využití a investiční příležitost - ať už jako stávající ubytovací zařízení nebo i jako rekreační objekt pro vícečlennou rodinu či blízké a známé. Je možnost provoz rozšířit o pohostinství, restauraci, teambuildingové účely, firemní večírky. Nebo i objekt využít jako firemní prostor - výrobnu, sklad, dílnu a ubytovací zázemí pro zaměstnance.

Lokalita je ideální svou dobrou dopravní obslužností, v blízkosti jsou Nové Hrady, Suchdol nad Lužnicí i České Velenice, zároveň je v okolí klid a malebná příroda CHKO Třeboňska. Místo si najde hojné turistické využití díky dostatku cyklostezek. V dojezdové vzdálenosti jsou také oblíbe Prodávající si vyhrazuje právo vybrat kupujícího na základě jím zvolených kritérií.

Kontaktujte makléře nemovitosti

Podobné nemovitosti

Prodej penzionu, ubytování Hranice u Nových Hradů

Prodej penzionu, ubytování Hranice u Nových Hradů

Exkluzivně nabízíme k prodeji objekt v obci Hranice u Nových Hradů. Tento dům sloužil v minulosti jako hostinec, cca před 22 lety byl opraven a přestavěn. Dnes slouží objekt k trvalému bydlení (bytová jednotka o dispozici 3+1). Čá...

9 500 000 Kč za nemovitost

Prodej unikátního pozemku 18.492 m² v Přírodním parku Novohradské hory k výstavbě rodinného domu

Prodej unikátního pozemku 18.492 m² v Přírodním parku Novohradské hory k výstavbě rodinného domu

Nabízíme k prodeji výjimečný pozemek v osadě Hlinov, skrytý v téměř nedotčené krajině Novohradských hor, kde se rozprostírají rozlehlé lesy, sluncem zalité louky, šumící potoky a spletité stezky vedoucí k malebným vesničkám. Celko...

7 350 000 Kč za nemovitost

informace o ceně v realitní kanceláři

Mladošovice u Borovan – novostavba RD s garáží, bazénem a pozemkem 912 m2

Mladošovice u Borovan – novostavba RD s garáží, bazénem a pozemkem 912 m2

Nabízíme k prodeji nadstandardně provedenou, zatím neobývanou novostavbu přízemního rodinného domu v obci Mladošovice, vzdálené 9 km od Třeboně a 6,5 km z Borovan. Součástí pozemku o celkové výměře 912 m2 je samostatný, nepodsklep...

12 950 000 Kč za nemovitost

uvedená cena je včetně kompletního vybavení domu

Prodej rodinného domu v Klení u Benešova nad Černou

Prodej rodinného domu v Klení u Benešova nad Černou

Nabízíme k prodeji rodinný dům, kolaudovaný v roce 2010, v klidné části obce Klení, 4 km od Benešova nad Černou. Tato nemovitost je ideální pro rodiny s dětmi, které hledají bezpečné a zdravé prostředí pro své potomky. Lze ji využ...

4 990 000 Kč za nemovitost

Prodej pozemku pro bydlení 1764 m2, Ledenice

Prodej pozemku pro bydlení 1764 m2, Ledenice

Nabízíme k prodeji stavební pozemek 1764 m2 v obci Ledenice. Pozemek obdélníkového tvaru je situován na mírném jižním svahu s bezproblémovým přístupem z asfaltové obecní komunikace v ulici Školní, pozemek je zcelen ze dvou ploch v...

6 700 000 Kč za nemovitost