Přední Výtoň - prostorný rodinný dům s udržovanou zahradou

9 850 000 Kč za nemovitost

E Nehospodárná

Přední Výtoň Klidná část obce

  | mapa

Nabízíme k prodeji zděný rodinný dům v obci Přední Výtoň vzdálené 7 km z Lipna nad Vltavou. Umístěný je v klidné, okrajové části obce s výhledem na vodní nádrž Lipno (550 m).

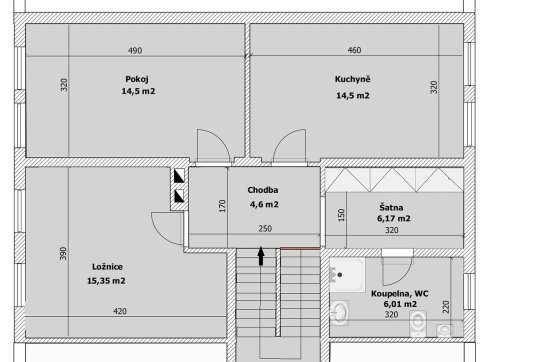
Součástí pozemku o celkové výměře 697 m2 je kompletně podsklepený, dvoupodlažní dům o zastavěné ploše 108 m2, který disponuje užitnou plochou cca 208 m2. Kolaudován byl v r. 1995, ale v průběhu let byl velmi pečlivě udržován a také modernizován: první nadzemní podlaží je po celkové rekonstrukci, v části výměna oken, přístavba pergoly aj.

Obytná část disponuje dvěma bytovými jednotkami a je členěna ve dvou podlažích. V 1. nadzemním podlaží se nachází vstupní veranda, předsíň, chodba, obývací pokoj prostorem na spaní je propojený s jídelním a kuchyňským a koutem a je z něj přímý vstup na venkovní, zastřešenou terasu. Dále je zde koupelna s velkým sprchovým koutem a WC, vytápěná elektrickými podlahovými rozvody.

Z chodby je přístup do druhého podlaží, kde jsou dva pokoje, koupelna se sprchovým koutem a s WC, šatna a samostatná kuchyně. V chodbě je výlez na půdu, kde by byla možnost vybudování podkroví o vel. cca 60 m2.

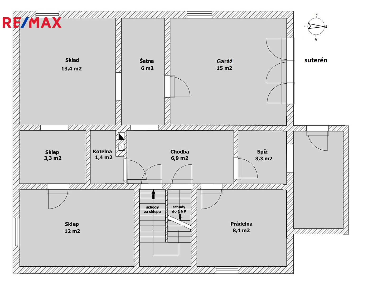
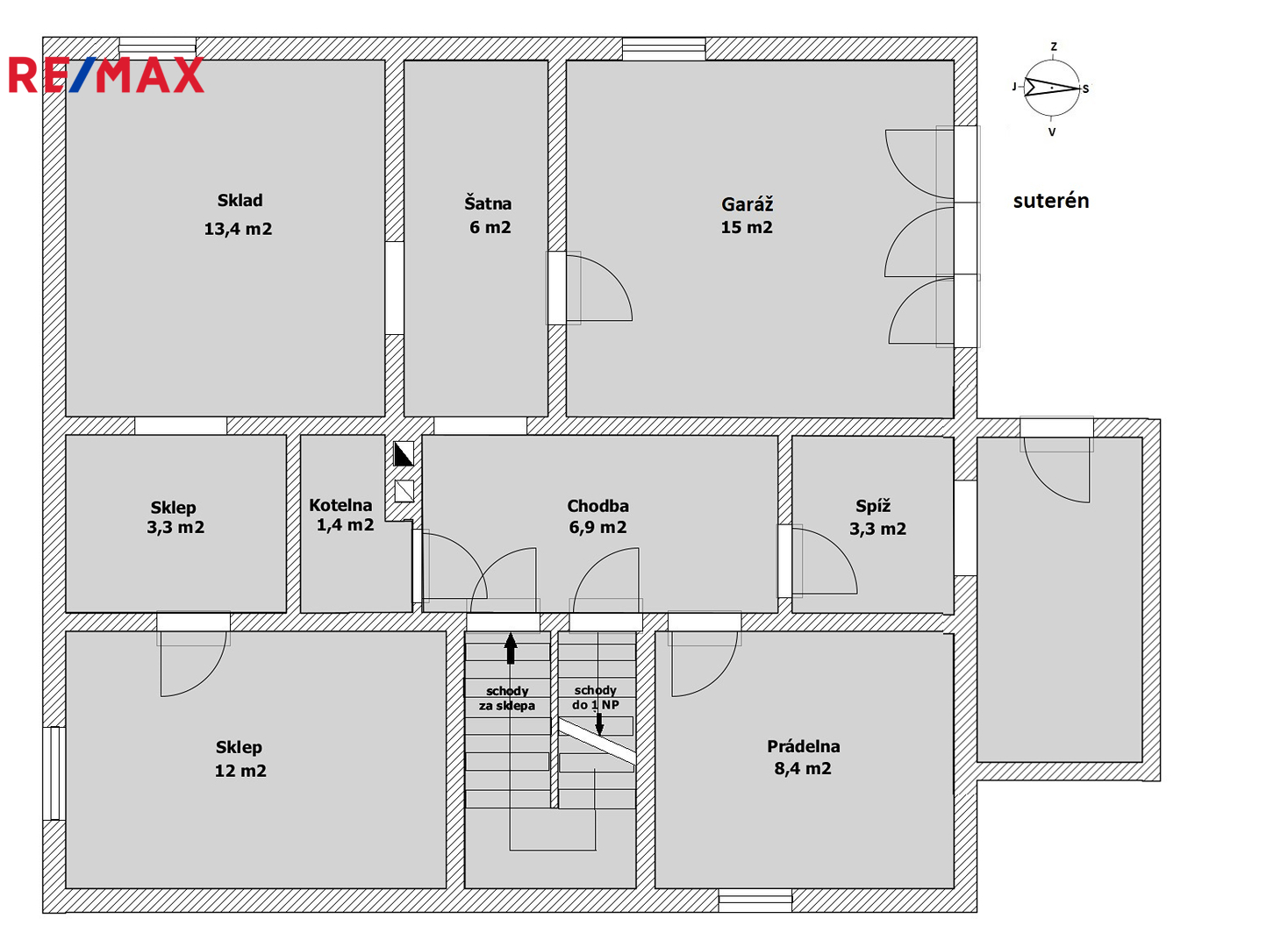
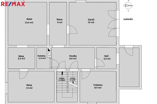
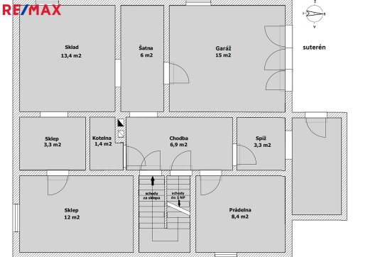
V technickém přízemí domu je bývalá garáž, sloužící jako pracovna, další tři místnosti, z nichž v jedné je příprava na prádelnu a kotelna.

Dům se prodává vybavený vestavěnými skříněmi v koupelně, předsíni a obývacím pokoji, prostornou zánovní kuchyňskou linkou se spotřebiči v 1. NP a dalším dle domluvy. Dispozici domu a jednotlivých podlaží najdete na přiloženém orientačním půdorysu.

Součástí je garáž s průchodem na zahradu, zahradní domek a kůlny na uskladnění dřeva a dalšího příslušenství. Dále částečně prosklená terasa s pergolou. Oplocená zahrada je osázená množstvím okrasných dřevin, díky nimž je na celém pozemku příjemné soukromí. Parkování je možné v garáži nebo na vydlážděné ploše před ní.

Ohřev vody je řešený elektrickým bojlerem, vytápění domu je kombinací plynu (zásobník na propan na zahradě) a lokálního topení pomocí krbové vložky s rozvodem teplého vzduchu i do 2. NP. Dalším vybavením domu je centrální vysavač.

Nemovitost doporučuji klientům, kteří hledají prostorný dům v krásné lokalitě obklopené přírodou, v blízkosti vodní nádrže, a přitom v části obce, kde není nadměrný pohyb turistů. Dům je vhodný jak k trvalému bydlení, tak je ho možné využívat ke krátkodobému pronájmu. V obci je základní občanská vybavenost, komplexní pak v Lipně n. Vltavou nebo Loučovicích.

Kontaktujte makléře nemovitosti

Podobné nemovitosti

Prodej dvojdomu s velkou zahradou v Hůrce na Lipensku.

Prodej dvojdomu s velkou zahradou v Hůrce na Lipensku.

Nabízíme ke koupi nemovitost s variabilní možností využití, situovanou v lokalitě Hůrka u Lipenského jezera, na adrese Hůrka 64. Na pozemku s celkovou výměrou 956 m2 se nachází stavba domu se 2 samostatnými částmi, které lze využí...

8 300 000 Kč za nemovitost

Prodej prostorného vícegeneračního domu 150 m2, s vlastním pozemkem 1811 m2, Kladné

Prodej prostorného vícegeneračního domu 150 m2, s vlastním pozemkem 1811 m2, Kladné

Exkluzivně nabízíme ke koupi prostorný vícegenerační rodinný dům v dobrém stavu, nacházející se v klidné části obce Kladné u Kájova, jen pár minut jízdy od Českého Krumlova. Dům je ideální pro vícečlennou rodinu, dvougenerační byd...

7 990 000 Kč za nemovitost

Prodej domu v osobním vlastnictví, pozemek 2 577 m2, les 10 018 m2 a vodní nádrž 284 m2, Zdíky

Prodej domu v osobním vlastnictví, pozemek 2 577 m2, les 10 018 m2 a vodní nádrž 284 m2, Zdíky

Nabízíme prodej domu s pozemkem v malé jihočeské vesničce Zdíky v okrese Český Krumlov. Jedná se o starší nepodsklepený přízemní rodinný domek. Obytná část domu se sestává ze dvou samostatných bytových jednotek s vlastním vchodem,...

4 990 000 Kč za nemovitost

Prodej statku po částečné rekonstrukci

Prodej statku po částečné rekonstrukci

Nabízím k prodeji velký statek s rozsáhlými stájemi a pozemky v malebné přírodě kousek od obce Omlenice s dobrou dopravní dostupností. Blízko se nachází město Kaplice a budovaná dálnice D3. Celková plocha pozemků je 4 168 m2. Užit...

6 900 000 Kč za nemovitost

Prodej rodinného domu před dokončením, pozemek 1035 m2, Blansko u Kaplice

Prodej rodinného domu před dokončením, pozemek 1035 m2, Blansko u Kaplice

Nabízíme ke koupi rodinný dům před dokončením nacházející se v klidné části obce Blansko u Kaplice v jižních Čechách, okres Český Krumlov. Jedná se o novostavbu samostatně stojícího dvoupodlažního cihlového domu. K domu přiléhá dí...

9 200 000 Kč za nemovitost