Podnájem nadstandardního nového bytu 4+kk se zahradou a parkovacími místy

34 000 Kč za měsíc

C Úsporná

České Budějovice Klidná část obce

  | mapa

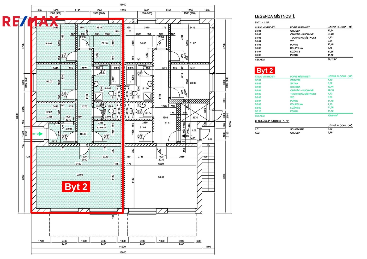
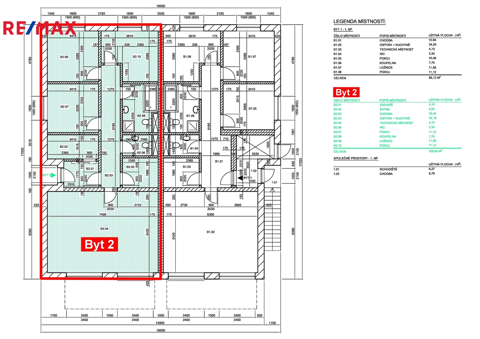
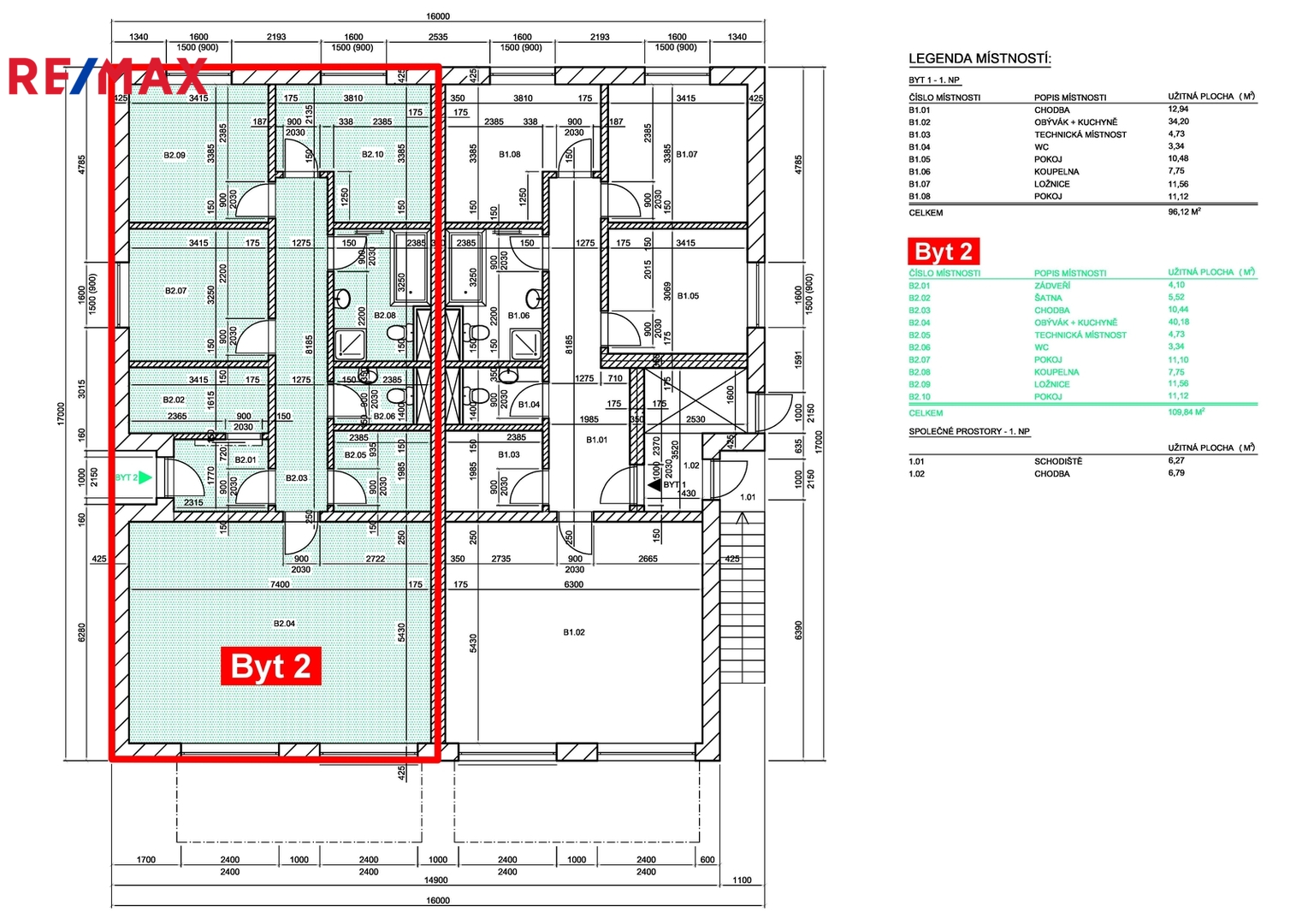
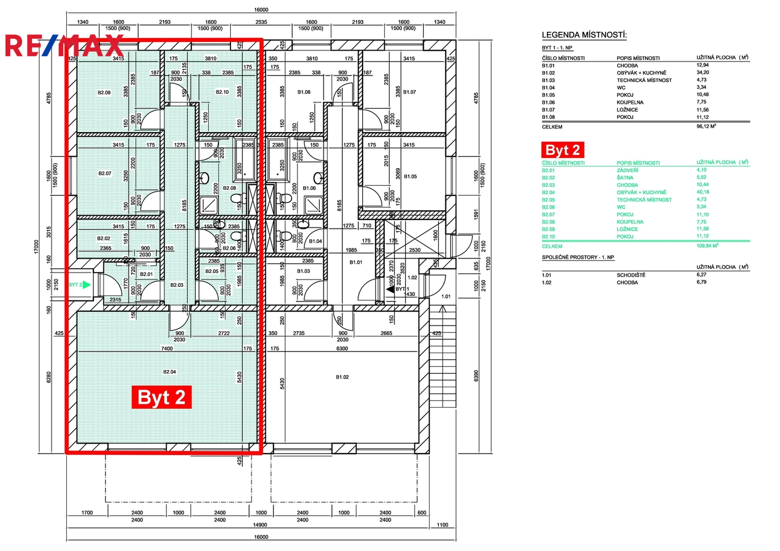
Nabízím k podnájmu nadstandardní nový byt 4+kk (109 m2) se zahradou (335 m2) a dvěma parkovacími místy. Bytová jednotka se nachází v 1.NP novostavby Viladomu Leona, v ulici U Bašty 2927, ve výjimečné lokalitě, kde jste jen několik stovek metrů od obchodní zóny Globus a přitom v naprostém klidu s výhledem na Vrbenské rybníky. Byt má samostatný vstup. Ve výhradním užívaní nájemce je velká zahrada obklopující dům. Do výhradního užívání patří i 2 parkovací místa na parkovací ploše před domem.

Dispozičně je byt řešen jako 4+kk, kde najdete částečně vybavený obývací pokoj s kvalitní, kompletně vybavenou, kuchyňskou linkou a vstupem na prostornou terasu, tři samostatné pokoje, prostornou komoru, technickou místnost s přípojkou na pračku, koupelnu s WC, vanou i sprchovým koutem a druhé samostatné WC. Půdorys a výměry místností najdete ve fotogalerii. V celé jednotce jsou na podlaze kvalitní dlažby a lepený vinyl, bezfalcové vnitřní dveře Sapeli a LED osvětlení. Okna plastová s trojsklem.

Ohřev teplé vody je zajištěn elektrickým bojlerem umístěným v technické místnosti. O tepelnou pohodu v chladných dnech se starají elektrické podlahové topné folie s možností přesné regulace termostaty umístěnými v každé místnosti. V teplých letních dnech oceníte venkovní elektricky ovládané předokenní žaluzie na všech oknech. O příjemné klima po celý rok se postará rekuperace vzduchu.

Bonusem této jednotky je její připojení na samostatnou malou fotovoltaickou elektrárnu (4,1 kWp) instalovanou na střeše objektu, která pomůže budoucímu nájemci výrazně snížit účet za elektřinu.

Pouze pro nekuřáky bez domácích mazlíčků. Podnájemní smlouva minimálně na 1 rok. Nájemné 34 000 Kč + záloha na energie 5 000 Kč, vratná kauce 50 000 Kč. Provize RK 1x měsíční nájem. Pro další informace nebo termín prohlídky kontaktujte makléře.

Kontaktujte makléře nemovitosti

Podobné nemovitosti

Pronájem novostavby bytu 3+kk s terasou, sklepem a parkováním, 104 m², Čakovská, České Budějovice

Pronájem novostavby bytu 3+kk s terasou, sklepem a parkováním, 104 m², Čakovská, České Budějovice

Nabízím k pronájmu nový byt 3+kk s terasou, o výměře 84 m² + terasa 20 m², nacházející se ve 4. patře moderního bytového domu s výtahem v ulici Čakovská, České Budějovice. Součástí bytu je sklepní prostor o výměře 3,2 m2 a je k by...

23 000 Kč za měsíc

Husova tř. - Rezidence U Kapličky - pronájem zánovního bytu 3+kk s menší terasou a parkováním

Husova tř. - Rezidence U Kapličky - pronájem zánovního bytu 3+kk s menší terasou a parkováním

Nabízíme k pronájmu zděný byt umístěný v bytovém domě "Rezidence u Kapličky", který byl postaven před osmi lety na rohu ulic Sukova a Husova, v docházkové vzdálenosti do centra města Č. Budějovic. Jihozápadně orientovaný byt v 5. ...

21 000 Kč za měsíc

+ zálohy na energie cca 4.500 Kč/2os.

Pronájem kancelářských prostor 63,5 m2 v širším centru ČB s parkováním

Pronájem kancelářských prostor 63,5 m2 v širším centru ČB s parkováním

Nabízíme k pronájmu kancelářské prostory č. 223 o výměře 63,5 m2. Kancelář se nachází v 2.NP administrativní budovy v Kubatově ul. blízko centra ČB. Kanceláře jsou situovány v širším centru ČB, 5min pěšky od centra. V blízkosti je...

24 000 Kč za m2 za rok

+služby 1090Kč/m2/rok

Pronájem kancelářských prostor 210,4 m2 v širším centru ČB s parkováním

Pronájem kancelářských prostor 210,4 m2 v širším centru ČB s parkováním

Nabízíme k pronájmu kancelářské prostory č. 117 o výměře 210,4 m2. Kancelář se nachází v 1.NP administrativní budovy v Kubatově ul. blízko centra ČB. Kanceláře jsou situovány v širším centru ČB, 5min pěšky od centra. V blízkosti j...

24 000 Kč za m2 za rok

+služby 1090Kč/m2/rok

Pronájem novostavby bytu 3+kk s lodžií, 71 m2, Na Zlaté stoce, Č. Budějovice

Pronájem novostavby bytu 3+kk s lodžií, 71 m2, Na Zlaté stoce, Č. Budějovice

Nabízím k pronájmu byt 3+kk s lodžií, v novostavbě Na Zlaté stoce v Českých Budějovicích, 70,6 m2 + lodžie + sklep, v 5. patře s výtahem. Byt je zajímavý svou polohou - klidné místo v těsné blízkosti Stromovky a rozumné vzdálenost...

17 300 Kč za měsíc