Osiková ul., Mladé - pronájem zařízeného bytu 1+kk bez balkonu

12 000 Kč za měsíc

+ zálohy na energie cca 3.800 Kč/2os.

C Úsporná

České Budějovice Klidná část obce

Nabízíme k pronájmu byt o velikosti 1+kk umístěný v 1. patře zděného bytového domu s výtahem (v uzavřeném bytovém komplexu), v žádané lokalitě Mladé - ulice Osiková, v Českých Budějovicích.

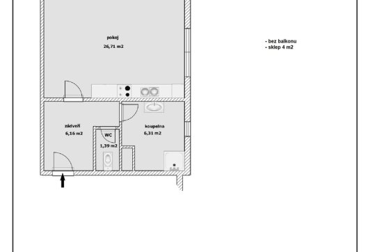
Podlahová plocha bytu je 41 m2 + sklep 4 m2. Byt je dispozičně řešený jako 1+kk a sestává se z předsíně, pokoje s kuchyňským koutem a koupelny se sprchovým koutem a samostatného WC. Orientován je na východ. Dispozici bytu s rozměry jednotlivých místností najdete na přiloženém orientačním půdorysu.

Součástí je sklep v přízemí domu, není zde balkon. Byt se pronajímá vybavený kuchyňskou linkou se spotřebiči (lednice s mrazákem, indukční varná deska, myčka nádobí, horkovzdušná trouba, digestoř), jídelním stolem se židlemi, TV stolkem, gaučem, konferenčním stolkem a postelí, dále pak šatní skříní a botníkem v chodbě, koupelnovým nábytkem a pračkou. Vybavení je zobrazeno na fotografiích.

Vytápění a ohřev vody v bytě je řešené centrálním plynovým kotlem v budově. Měsíční nájemné činí 12.000 Kč + zálohy na energie cca. 3.800 Kč/měsíc/2osoby. Kauce dva měsíční nájmy.

Majitel preferuje nekuřáky. K dispozici je ihned, vhodný je max. pro 1-2 osoby. Byt doporučuji zejména klientům, kteří preferují bydlení v klidné části města a přitom s dobrou dostupností do jeho centra. V případě zájmu kontaktuje asistentku sl. Votrubovou na tel. 774 535 079

Kontaktujte makléře nemovitosti

Podobné nemovitosti

Pronájem zrekonstruovaného bytu 2+kk, 46,8 m2, možnost parkování, centrum města

Pronájem zrekonstruovaného bytu 2+kk, 46,8 m2, možnost parkování, centrum města

Nabízíme k pronájmu zrekonstruovaný byt 2+kk, umístěný ve 3 NP multifunkční budovy v žádané lokalitě v blízkosti centra města v ulici Žižkova. Byt s dispozicí 2+kk (46,8 m2) je situován v nově kompletně zrekonstruovaném multifunkč...

14 580 Kč za měsíc

+ energie 4.596,- Kč

Pronájem novostavby bytu 2+kk, 48 m², Nová Vltava, České Vrbné, České Budějovice

Pronájem novostavby bytu 2+kk, 48 m², Nová Vltava, České Vrbné, České Budějovice

Nabízím k pronájmu zánovní byt 2+kk o výměře 48 m², nacházející se v 6. patře moderního bytového domu s výtahem v lokalitě Nová Vltava, České Vrbné, České Budějovice. Stáří domu a bytu je 4,5 roku. Byt je proveden v moderním stylu...

14 000 Kč za měsíc

Pronájem zrekonstruovaného 1+kk s lodžií, ul. Labská

Pronájem zrekonstruovaného 1+kk s lodžií, ul. Labská

Nabízím Vám k pronájmu nově zrekonstruovaný slunný byt v lokalitě Vltava, ulice Labská. Byt o dispozici 1+kk se nachází v žádané lokalitě s veškerou občanskou vybaveností. Byt o celkové podlahové ploše 32,36 m2 se nachází v deváté...

11 000 Kč za měsíc

+ energie 2.333,- Kč + elektřina přepis

Pronájem bytu 2+1 s lodžií a halou, 59 m², ulice Dubenská, České Budějovice

Pronájem bytu 2+1 s lodžií a halou, 59 m², ulice Dubenská, České Budějovice

Nabízím k pronájmu byt 2+1 s lodžií a halou, ulice Dubenská, České Budějovice. Byt se nachází ve 2. patře šestipatrového panelového domu s výtahem. Celková výměra bytu činí 59 m², z toho čistá obytná plocha 55 m² + lodžie 4 m². K ...

11 500 Kč za měsíc

Pronájem podkrovního bytu 2+kk, 59 m², Průmyslová ulice, Kamenný Újezd

Pronájem podkrovního bytu 2+kk, 59 m², Průmyslová ulice, Kamenný Újezd

Nabízím k pronájmu podkrovní byt 2+kk o výměře 59 m², umístěný v podkroví rodinného domu, v ulici Průmyslová, Kamenný Újezd. Byt má samostatným vchod, a tím je zaručeno plné soukromí nájemců. Dům je stáří deseti let a byt byl vybu...

12 500 Kč za měsíc