
Nabízíme ke koupi zánovní nemovitost umístěnou na vlastním pozemku v obci Čakov, vzdálené 12 km z Českých Budějovic, na západním okraji Českobudějovické pánve.
Rekreační objekt využíván k trvalému, celoročnímu bydlení byl postaven před pěti lety na místě původní chaty. Je o zastavěné ploše 50 m2 a stojí na oploceném pozemku o celkové rozloze 304 m2.
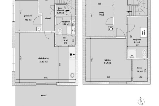
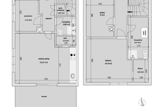
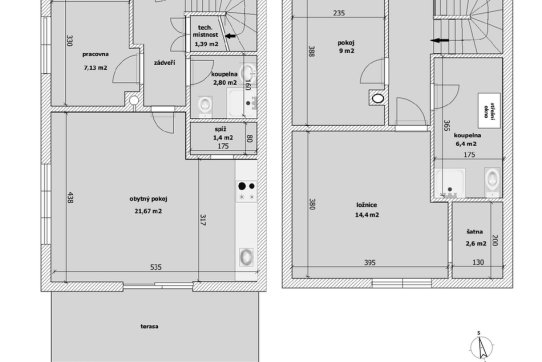
Dvoupodlažní domek disponuje užitnou plochou 77 m2. V prvním podlaží se nachází zádveří, hlavní obytná místnost s kuchyňským koutem a spíží, koupelna se sprchovým koutem a WC, malý pokoj – pracovna a úložný prostor pod schody. Schodištěm je přístup do druhého patra s chodbou, jednou hlavní ložnicí se šatnou, druhým malým pokojem a koupelnou se sprchovým koutem a WC a prostorem pro pračku.
Prodává se vybavený kuchyňskou linkou se spotřebiči (horkovzdušná trouba, indukční varná deska, digestoř, myčka nádobí). Podlahové krytiny jsou kombinací dlažby a vinylových podlah. Orientační dispozici obytné části s rozměry jednotlivých místností najdete na přiloženém půdorysu.
Dům je napojený na přípojku elektřiny, vodovodního řadu, odpad je svedený do kanalizace. Vytápění celé nemovitosti je ústředními rozvody, v přízemí podlahovými, v podkroví radiátory. Zdrojem tepla je elektrický kotel a v obývacím pokoji krb. Ohřev vody zajišťuje elektrický bojler. Dům je postaven z broušených cihel Porotherm s výplní minerální vatou, plastová okna Vekra (dvojsklo), v podkroví je světlovod. Dešťová voda je svedena do retenční nádrže a je využívána na zálivku zahrady.
Součástí nemovitosti je dřevěná pergola přístupná také z obytného pokoje, dále pak zastřešené parkovací stání a dřevěný sklad zahradního nábytku a vybavení v horní části pozemku. Vzhledem ke svažitému terénu je oplocená zahrada vyřešena terasovitě a je osázená vzrostlými, převážně okrasnými dřevinami a trvalkami, zaručující příjemné soukromí. Příjezd k nemovitosti je po zpevněné, udržované komunikaci.
Hlavní předností této nemovitosti je umístění v lokalitě obklopené malebnou krajinou s množstvím rybníků v podhůří CHKO Blanský les a přitom s výbornou dostupností do Českých Budějovic. V Čakově je základní občanská vybavenost.
Domek doporučuji těm, kteří hledají objekt jak k celoročnímu, tak k sezónnímu bydlení nebo k rekreaci. Mohl by být i vhodným kompromisem mezi bytem a standardním rodinným domem k bydlení pro menší rodinu.
Nabízíme k prodeji dřevěnou chatu na cihlové podezdívce v chatové oblasti Picina, která se nachází mezi obcemi Čejkovice a Břehov, vzdálené 14 km od centra Českých Budějovic. Chata o velikosti 2+1 se zahradou 483...
3 600 000 Kč za nemovitost
vč. provize a právního servisu
Nabízíme ke koupi prostorný byt 2+1 s balkónem umístěný v 1. patře panelového domu s výtahem. Byt v osobním vlastnictví se nachází na sídlišti Šumava v ulici J. Opletala a jeho okna jsou směřována na východ a ...
4 200 000 Kč za nemovitost
včetně právních služeb a provize RK
Nabízím k prodeji byt 4+1, ulice Branišovská, 88,34 m2, osobní vlastnictví, 1. patro s výtahem, lodžie, komora. Čistá výměra bytu 79,66 m2 + lodžie 5,6 m2 + sklep 3,08 m2. Byt se nachází na sídlišti Šumava, bezpr...
5 890 000 Kč za nemovitost
Exkluzivně nabízíme k prodeji stavební pozemek nacházející se v atraktivní lokalitě obce Boršov nad Vltavou, dostupné MHD z Českých Budějovic. Obdélníkový, ze tří stran oplocený, rovinatý pozemek s rozměry cc...
7 980 000 Kč za nemovitost
Nabízíme vám k prodeji zděný byt v žádané lokalitě v centru města. Byt o dispozici 3+kk a ploše 78 m2 se nachází ve druhém nadzemním podlaží (1.patře) čtyřpatrové budovy. Do bytu se vchází předsíní (7 m2)...
5 200 000 Kč za nemovitost