Rodinný dům se zahradou a velkým potenciálem, Praha 6 – Řepy

14 550 000 Kč za nemovitost

G Mimořádně nehospodárná

Praha Klidná část obce

  | mapa

Hledáte dům, který si můžete přetvořit podle vlastních představ – v oblíbené a klidné části Prahy?

Tento prostorný dům v Praze 6 – Řepích nabízí ideální kombinaci: skvělou polohu, velkorysý prostor a možnost kompletní modernizace podle vašeho vkusu.

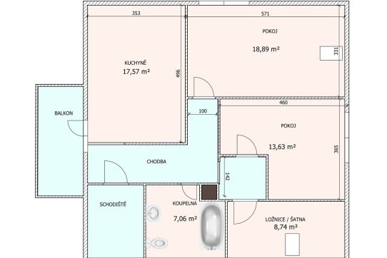
Prostor a dispozice:

Dům o užitné ploše cca 180 m² stojí na pozemku o velikosti 496 m², z toho zahrada 292 m².

Dispozice 6+1 je mimořádně flexibilní – lze ji rozdělit na dvě samostatné bytové jednotky nebo doplnit o garsonku a ateliér.

Skvělá volba pro vícegenerační bydlení, rekonstrukci na pronájem, nebo i menší developerský projekt.

Stav domu a rekonstrukce:

Dům je určen k rekonstrukci – vyžaduje zejména výměnu střechy a modernizaci interiéru.

Na druhou stranu už proběhly některé dílčí úpravy:

rozvody elektřiny v mědi, plastové odpady, plastová okna v části domu, plynový kotel z roku 2020.

Napojení na všechny inženýrské sítě (elektřina, voda, plyn, kanalizace) je samozřejmostí.

Dům má velký potenciál, díky nutnosti nové střechy můžete plně využít půdní prostor pro moderní přestavbu.

Zahrada a okolí:

Na pozemku se nachází zahrada s jihozápadní orientací, ideální pro relaxaci, dětské hry nebo letní posezení.

Zahrada je dostatečně prostorná i pro parkování dvou aut, pozemek je rovný a nachází se na něm garáž - velký zahradní domek.

Lokalita Praha 6 – Řepy:

Řepy patří mezi vyhledávané rezidenční lokality díky spojení městského komfortu a klidného prostředí.

V okolí se nachází MHD (autobus 164 – cca 130 m), školy, školky, obchody, restaurace a zelené parky.

Do centra Prahy se pohodlně dostanete během 20 minut.

Hlavní benefity:

Dům s velkým potenciálem k rekonstrukci podle vlastních představ.

Klidná a žádaná lokalita Praha 6 – Řepy.

Možnost vícegeneračního nebo investičního využití.

Pozemek 496 m², zahrada 292 m².

Napojení na veškeré sítě, plynový kotel 2020.

Neváhejte mě kontaktovat a domluvte si osobní prohlídku.

Tento dům je skvělou volbou pro ty, kteří chtějí vytvořit moderní bydlení v jedné z nejpříjemnějších částí Prahy 6.

Kontaktujte makléře nemovitosti